CHOICES - Memphis Center for Reproductive Health
CHOICES - Memphis Center for Reproductive Health
1203 Poplar Ave, Memphis, TN 38104 United States
Building Area (sf): 15,800 SF gross area; 14,400 SF heated and cooled
Completion: October 2020
Architect of Record:
ooba
n/a
- Owner/Client:
- General Contractor: S. Webster Haining
- Electrical: Collect + Curate Studio (Interior Design)
Haltom Engineering (Mechanical and Plumbing)
Scallion Structural Engineering - Engineering:
- Other:
- Photography:
1- North façade - front of building on Poplar Ave. Photo courtesy of firm.
2- Site aerial and miscellaneous interior images featuring building occupants. Photo courtesy of firm.
3- South façade and south entry porch. Photo courtesy of ooba.
4- East façade. Photo courtesy of firm.
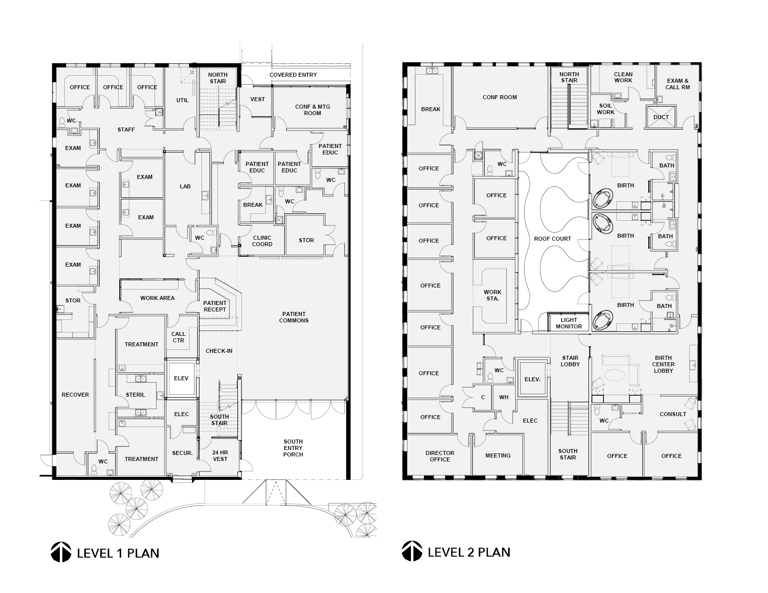
5- Floor plans. Photo courtesy of firm.
6- Reception desk with light monitor above; south stairs. Photo courtesy of firm.
7- Main lobby. Photo courtesy of firm.
8- Birthing suites courtyard; South stair lobby. Photo courtesy of firm.
9- Birthing suite. Photo courtesy of firm.
10- Street view on Poplar Ave (viewing southwest). Photo courtesy of firm.
This project provided a new home for the Memphis Center for Reproductive Health (CHOICES). When this facility opened, CHOICES became the nation’s first nonprofit organization to provide both a birthing center and abortion services under one roof. Additionally, the complex and varied program - which exists in an ever-changing legal landscape - includes provisions for education and community outreach.
Founded in 1974, CHOICES is a national model for truly comprehensive reproductive healthcare that now includes reproductive and sexual wellness services, perinatal care, out-of-hospital births using a midwifery model, and gender-affirming services. The healthcare clinic occupies the ground floor with staff areas buffering the street. The second floor houses administrative offices and the birthing center – each on opposite sides of a garden courtyard.
The owner and architect embraced the challenge of providing a safe, secure, and nurturing facility with one that is vibrant and highly visible. The building is simultaneously outward looking and inward focused. The patterned façade was inspired by the artform of the southern quilt - draped over a relatively simple box. The quilt touches on themes of warmth and shelter, diversity through artistic expression, and cooperative community engagement (e.g. quilting bee gatherings).
In addition to presenting a vibrant façade on the busy Poplar Ave corridor, the building includes ample interior daylighting. A vegetated roof garden accessible on level-2 provides natural lighting to adjacent birthing suites and to the level-1 lobby below via an interior light shaft. This landscaped courtyard (one of the few green roofs in Memphis) is directly accessible to laboring mothers and their families, or alternatively they can enjoy views of the landscaped space from their birthing tubs. The courtyard, which has recently been home to nesting birds, is also an oasis from the bustle of Poplar Ave.
During the design process, the owner acquired a narrow parcel fronting on the adjacent Bellevue Blvd. This resulted in an L-shaped lot with two street frontages (notched at the intersection). Protestors historically chose the busier “front” of the building, prompting the design team to flip the entry/exit to Bellevue, thus allowing patients and staff much improved privacy and safety. The building responds in kind with its most generous entry on the “back” where a large porch welcomes patients. Large doors (similar to those used in automobile showrooms) can be opened on nice days or during special events.
On the interior, efforts were made to welcome guests and patients with soft, thoughtful materials and textures, which when paired with ample daylight are more evocative of hospitality spaces than medical spaces. Guests are encouraged to use the stairs, the most prominent of which is easy to locate, well lit, and features artwork and an oversized landing.

