Girls Inc. South Park + LDT Centers
Girls Inc. South Park + LDT Centers
1568 Robin Hood Lane, Memphis, TN 38111 United States
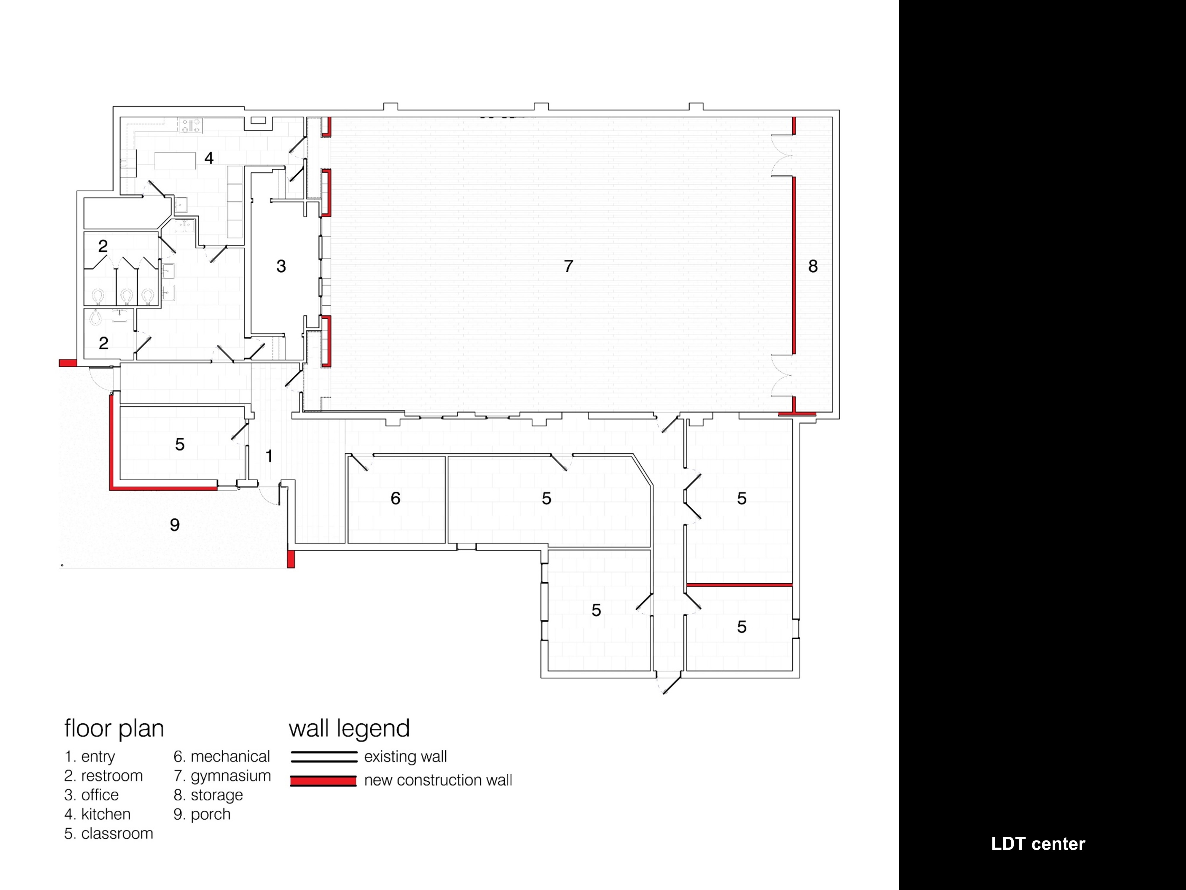
Building Area (sf): South Park center – 4,963 sf / LDT center – 5,075 sf
Completion: December 2018
Architect of Record:
archimania
archimania
- Owner/Client:
- General Contractor: Grinder Haizlip Construction
- Electrical: OZER Engineering- Structural
- Engineering:
- Other:
- Photography:
firm
Identify an architecturally branded image for Girls, Inc. - a national non-profit organization dedicated to inspiring all girls to be strong, smart, and bold - and open up the centers to the community through a bold front porch providing clear and inviting thresholds.
Girls Inc. is a national non-profit organization dedicated to inspiring all girls to be strong, smart and bold through direct services and advocacy. As they continue to expand their presence in the city of Memphis, they looked to update their South Park and LDT centers on a tight budget. While at opposite ends of the city, both centers were in major need of a strong identity. Working with the client, we identified three primary strategies that can be consistent between centers, both old and new: a bold front porch, a clear and identifiable thresholds, and an economical material pallet that contrasts the warm Girls Inc. red with various cool grey colors.
The front porches serve as both a presence in the community for the centers and a covered outdoor gathering space for the girls. The strategy includes a porch profile clad in economical cement board panels, a backdrop of horizontal cedar siding, and large signage. As well, the front porch serves as the first threshold into the building.
The second threshold, painted Girls Inc. red, leads into the main gathering space and is one of the few conditions where new interior walls were added to these centers. Throughout most of the space, grey vinyl floor tiles were chosen for durability. Red tiles were also used within these areas to match the walls. To satisfy a need for personal storage, plywood cubbies were built to provide a place for belongings such as backpacks and books. Clear thresholds into the center and the main gathering spaces reinforce the feeling that these centers are a safe place to
be nurtured and educated, and to prepare for the future.

