Belly Acres
Belly Acres
6150 Poplar Avenue, Memphis TN 38119 United States
Building Area (sf): 3,430 sf
Completion: December 2020
Architect of Record:
archimania
archimania
- Owner/Client:
- General Contractor: Linkous Construction
- Electrical: Fowler Engineering - Structural
HNA Engineering - MEP - Engineering:
- Other:
- Photography:
firm
The client wanted a new look for their brand and an experience that blended whimsy into their ongoing commitment to a certified farm fresh menu.
A local restaurant reached out to us wanting to expand their brand to a second location. Their menu offers local, fresh farm to table ingredients inspiring their original location’s design.
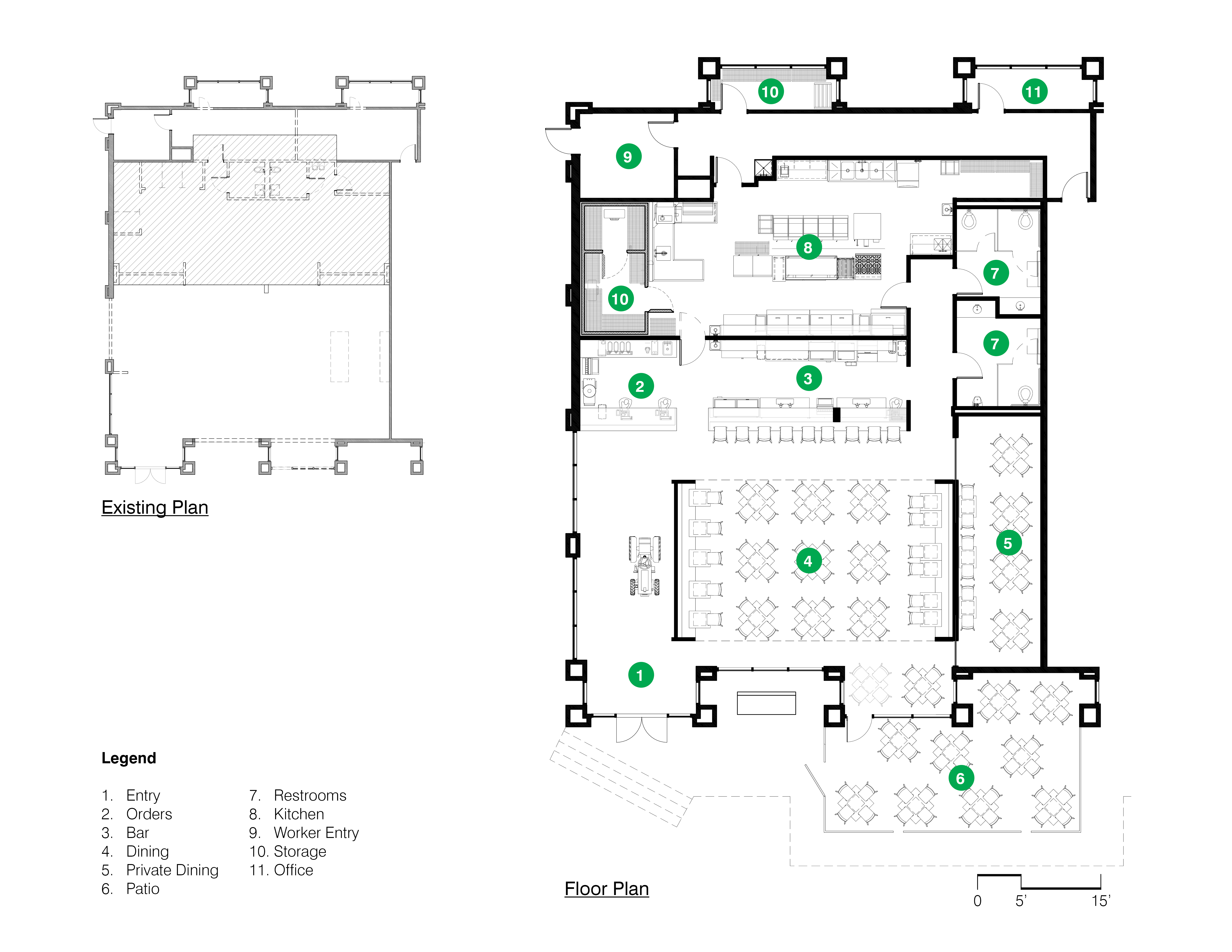
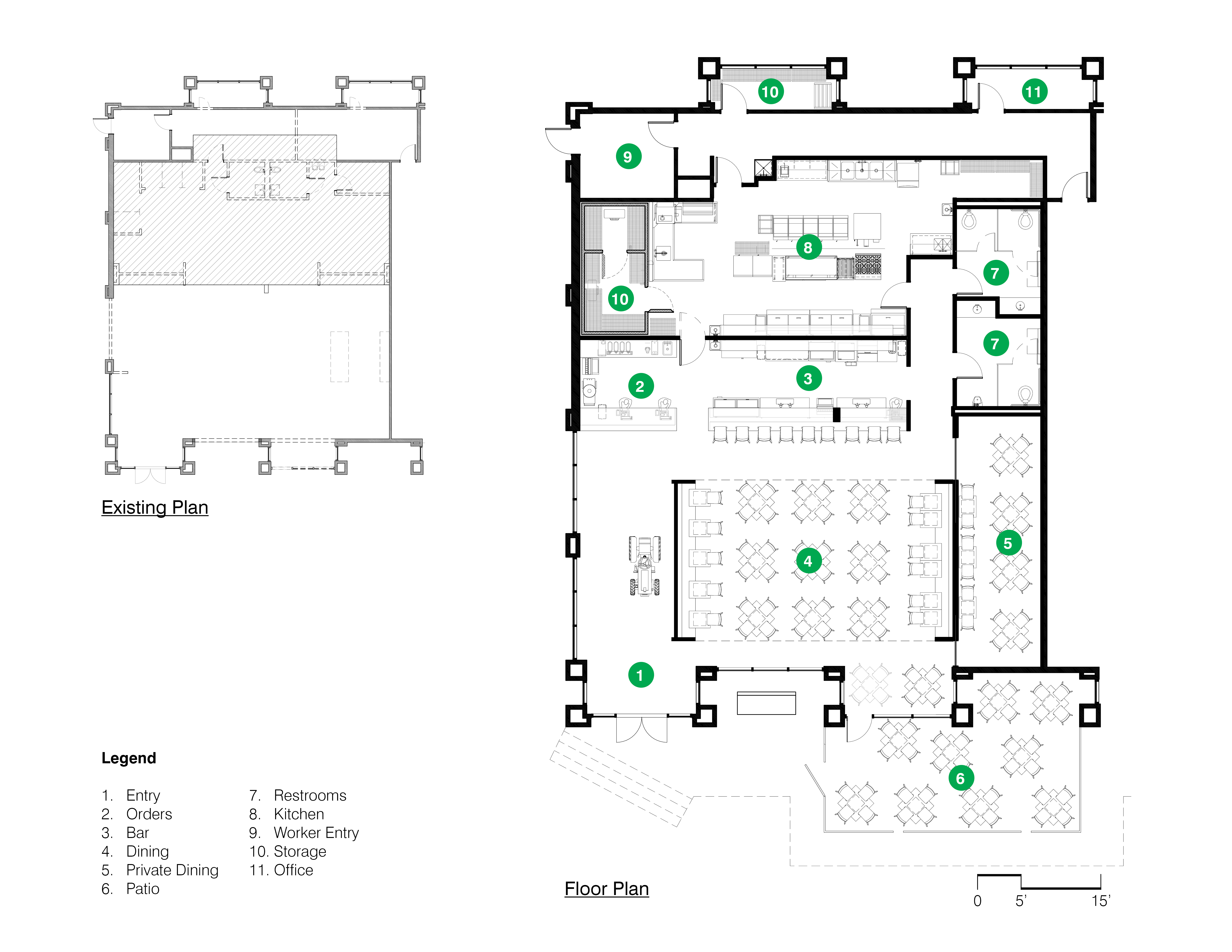
The project’s goal was to reach a broader audience, while still maintaining a playful, farm theme. We updated some elements from their original space but organized them in zones to keep a cohesive image that still speaks to their branding.
The tenant infill space was cut open to allow for more natural light and visual connections to an expanded outdoor patio space. Using a mix of greens, natural materials and a contrasting monochromatic custom cotton candy colored pink tractor on the interior allows for the bright colors to act as an additional billboard showing off the space. The dining room features fabricated barrel lights spaced for optimal light levels, a cut vinyl crop pattern and tectum panels for acoustical performance.

