The University of Tennessee Health Science Center Dentistry Faculty Practice/Research Building
The University of Tennessee Health Science Center Dentistry Faculty Practice/Research Building
875 Union Avenue, Memphis, TN 38103 United States
Building Area (sf): 68,000 sf
Completion: February 5, 2023
Architect of Record:
4FDesign
Architectural Consultant: Kahler Slater
4FDesign: Curt Pierce, AIA, NCARB; Tamara Redburn, AIA, LEED AP
Kahler Slater: Larry Schnuck, FAIA; Randy Morrison, AIA, LEED AP BD+C
- Owner/Client:
- General Contractor: Turner Construction
- Electrical: Civil & Structural: Burr & Cole, MPE, & FP: OGCB, Landscape: Ritchie Smith Associates; Landscape: Ritchie Smith Associates
- Engineering:
- Other:
- Photography:
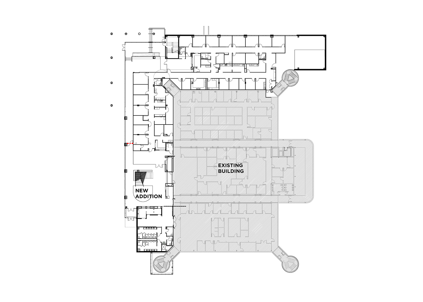
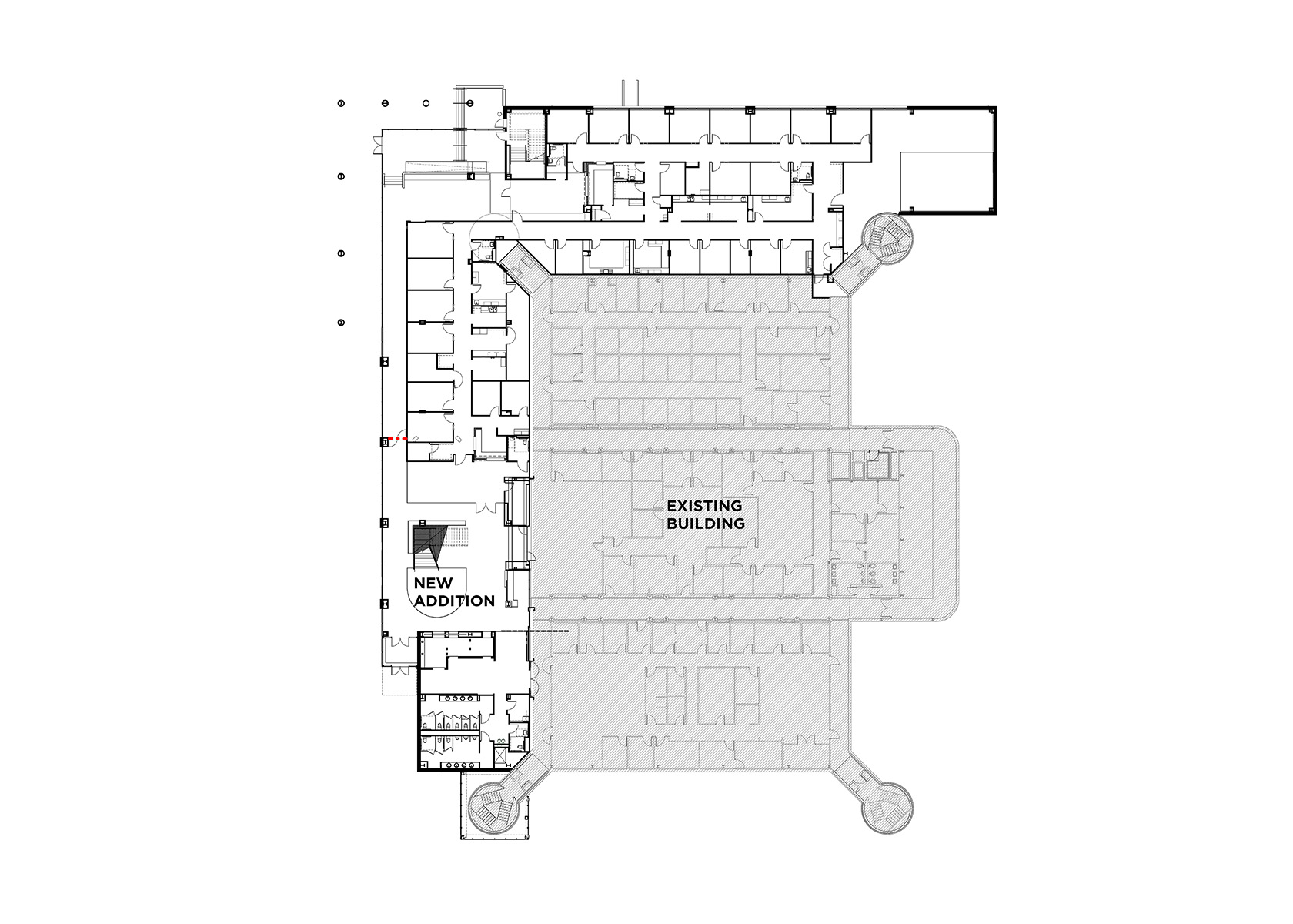
1 - Exterior view on Union Avenue. 2 - Exterior view on Dunlap Street. 3 - Dental Simulation Lab. 4 - Covered Student Plaza. 5 & 6 South Lobby. 7 - Dental Operatory. 8 - Conference Room. 9 - Tiered Lecture Hall. 10 - Overall Floor Plan by 4FDesign. Photos 1-9 by Jeffrey Jacobs Photography.
A new 68,000-square-foot building, the Delta Dental of Tennessee Building welcomes state-of-the-art facilities and a clinic for a growing underserved population, as well as classrooms, seminar rooms, labs and more to meet the anticipated demand for dentists in Tennessee and the surrounding region.
Bringing more space and light into a 1960s building and integrating it into a more current streetscape and campus-building environment proved to be one of the biggest challenges in designing the new Delta Dental of Tennessee Building in Midtown Memphis.
The new building “wrapped” the existing Dunn Dental Building on the north (facing Union Avenue) and west (facing downtown), offering a new façade and entrance. Today the 68,000-square-foot space houses a special needs clinic, a faculty practice, and dental technique laboratories for first- and second-year students.
More important, the new state-of-the-art building increases space for training Tennessee’s dental workforce and expands facilities to treat Mid-South patients. The additional space allows the college to reach its eventual goal to expand its class size to 130 students to meet the anticipated demand for dentists in Tennessee and the surrounding region, particularly in underserved rural areas.
The additional constructed space, which opened with a “floss cutting” in April 2023, also enabled the College of Dentistry to consolidate student learning and interaction; previously, lowerclassmen were located in another building.
Pre-construction, the faculty offices, Dean’s Office and administrative staff were housed in the basement with no windows. However, a new top-floor, Dean’s Suite and 12 faculty offices now offer space for more student activities and study areas. Study pods and ground-floor treatment rooms also offer lighter, brighter views to calm students and patients alike.
Ensuring minimal disruption during construction, clinics remained open and patient care continued unchanged. The faculty practice saw 58,000 patient encounters during construction in 2022.

