St. Mary's Episcopal School and Church of the Holy Communion Athletic & Wellness Center
St. Mary's Episcopal School and Church of the Holy Communion Athletic & Wellness Center
57 South Perkins Road, Memphis, TN 38117 United States
Building Area (sf): 58,594
Completion: November 2019
Architect of Record:
Fleming Architects
Scott Fleming, AIA, NCARB
Richard Wiggs, AIA
Veronica Tansey, ASID, IIDA
Anna Utley
- Owner/Client:
- General Contractor: Linkous Construction Company
- Electrical: Civil: The Reaves Firm; Landscape: Ritchie Smith Associates; Electrical: DePouw Engineering LLC; Mechanical, Plumbing, and Fire Protection: Barham Cain Mynatt; Structural: JHT & Associates; Audio/Visual: Nolan & Memphis Audio; Kitchen Consultant: Federal Equipment Dealers
- Engineering:
- Other:
- Photography:
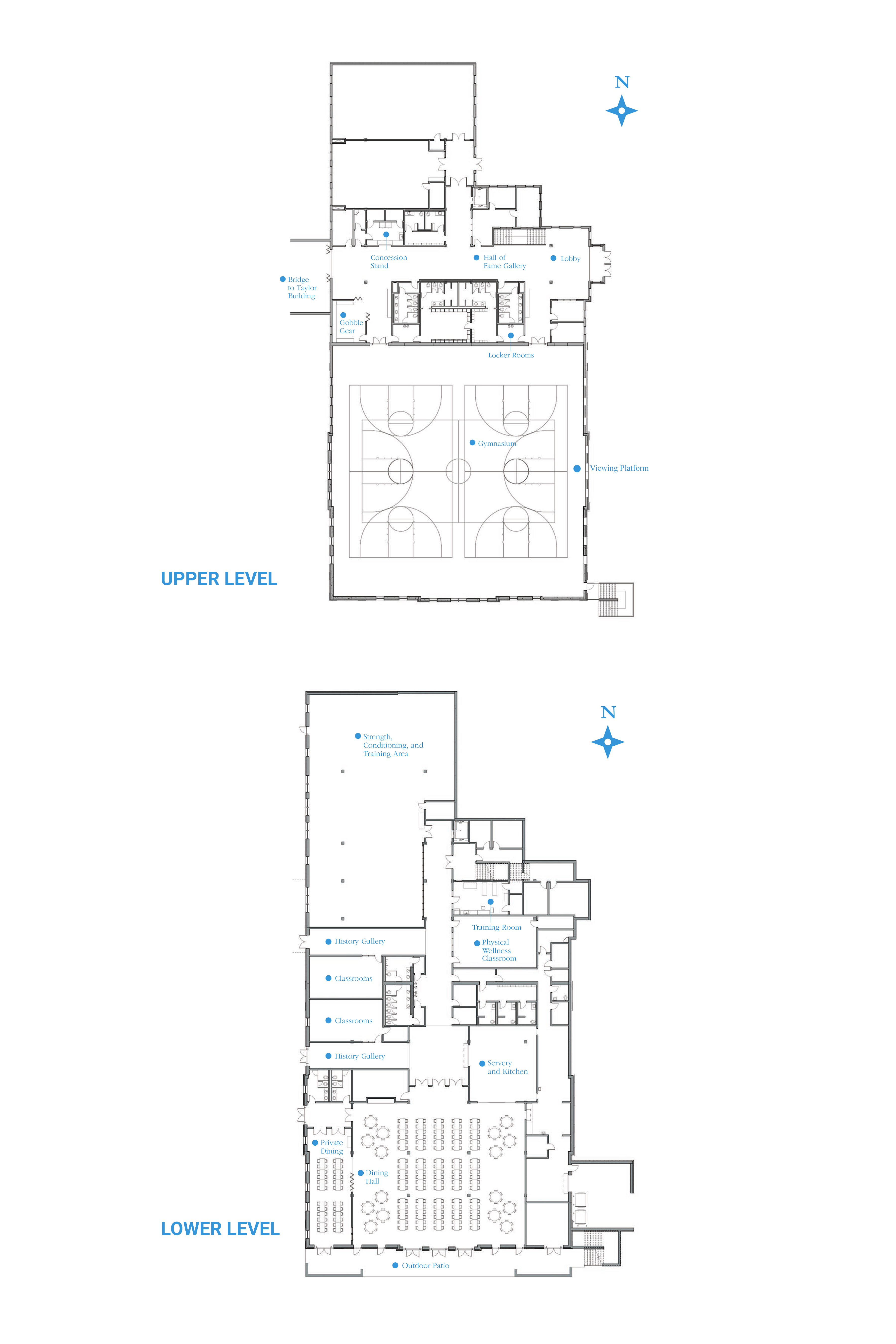
Photo 1 – The Dining Hall incorporates feminine light fixtures, various types of seating and a highly acoustical ceiling to diffuse sound from the Gymnasium above. Full height openings along the south flood the room with light and provide views and direct access to an outdoor patio overlooking the school’s sports fields.
Photo by Jeffrey Jacobs. Photo 2 – The Main Lobby space is anchored by the trophy case, fabricated from salvaged floor of the gym this building replaced. This space also serves as the main connection between the church and school. Photo by Jeffrey Jacobs. Photo 3 – The Gymnasium has a combination of traditional bleacher seating, a court-side lounge for officials, and an elevated viewing platform provides a variety of ways to appreciate the game. Photo by Jeffrey Jacobs. Photo 4 – The Strength Training Room uses dark blue exposed ceiling keeping the focus down where it should be – on the work. Waterjet cut rubber flooring further integrates the school’s branding. Photo by Jeffrey Jacobs. Photo 5 - The large window openings help modulate the very large volume and blend the building into its traditional campus. Photo by Jeffrey Jacobs. Photo 6 - The building steps down in scale at the entrance as the canopy reaches out to engage the site. The new building more than tripled the amount of usable square footage compared to the existing buildings without reducing on-site parking. Photo by Jeffrey Jacobs. Photo 7 - The building and related site work ties together three existing school buildings, two church buildings, and the shared parking and circulation areas. This outdoor connector, designed to resolve five different finished floor elevations, features two open-air classrooms as well as casual seating and gathering areas, interspersed with shade-tolerant landscaping. Photo by Jeffrey Jacobs. Photo 8 - Floorplans by Firm.
Two long-standing, land-locked, inner-city institutions come together to create a joint-use campus able to facilitate a growing K-12 all-girls school along with an expanding church congregation.
For decades, St. Mary’s Episcopal School’s academic curriculum flourished despite limited space. In the case of athletics and wellness, the students could no longer grow or thrive in facilities that had become inadequate. The new facility stands on the site of the former Barth Gymnasium and the Barth Building, both of which belong to the Church of the Holy Communion. In addition to a gymnasium, the new building includes a dining hall that replaced Blaisdell Cafeteria—a small, windowless, basement-level room the school has used since the 1950s.
The partnership with the Church of the Holy Communion enabled both institutions to move forward with a much-needed Athletic and Wellness Center. The building is compartmentalized so that both School and Church can use adjacent areas simultaneously without interfering with each other, or that either the School and Church can use the entire upper level for large events. The new dining hall on the first floor provides students and faculty a common location to gather for meals, meetings, collaborative learning, and study. Large windows overlooking the athletic fields capture natural light. The first floor also includes classrooms, athletic offices, a training and fitness facility, and an outdoor patio for viewing events on the track and field.
Bold and clean uses of the St. Mary’s blue create a distinct sense of place and identity. The second floor features a new gymnasium, locker rooms, a spirit store, concession stand, and a space for the St. Mary’s Athletic Hall of Fame. The gym features large windows, capturing more natural light, and a mezzanine for students to cheer on their peers during games. Having a strong nostalgic tie to the students and faculty of the school, the original Barth Gym floor was salvaged and reused in the design of the Hall of Fame, as well as building signage throughout the new building.

