Conwood I Flats
Conwood I Flats
46 Keel Avenue, Memphis Tennessee 38107 United States
Building Area (sf): 253,137
Completion: February 22, 2023
Architect of Record:
4FDesign
Tamara Redburn, AIA, LEED AP
Tre Yancy, Assoc. AIA, NOMA
Curt Pierce,AIA, NCARB
Scott Fleming, AIA, NCARB
Katrina Terrett
Julie Gasaway, NCIDQ
- Owner/Client:
- General Contractor: Linkous Construction Company
- Electrical: Landscape: Blair Parker Design
Structural: Davis Patrikios Criswell, Inc.
M/P: Haltom Engineering
Electrical: DePouw Engineering
Civil: Kimley-Horn - Engineering:
- Other:
- Photography:
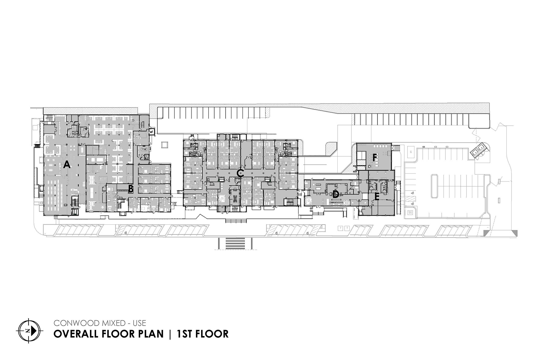
1 - After: Exterior view of renovated buildings from their previous factory and office use. Photo by Jeffrey Jacobs Photography. 2 - Before: The existing 110-year-old building. Photo by 4FDesign. 3 - Corridor where graffiti remains, and as walls came down, became abstract art and an important part of the story of the space to preserve. Photo by Jeffrey Jacobs Photography. 4 - Fitness Center showing columns and walls that were originally painted were cleaned but left in their original state. Photo by Jeffrey Jacobs Photography. 5 - Interior connection between buildings featuring original brick. Photo by Jeffrey Jacobs Photography. 6 - Typical Unit. Photo by Jeffrey Jacobs Photography. 7 - Exterior building connector. Photo by Jeffrey Jacobs Photography. 8 - Connectivity between buildings featuring free standing stairs. Photo by Jeffrey Jacobs Photography. 9 - Exterior View N. Front Street - Anything exterior facing - windows, doors, façade—had to remain. Photo by Jeffrey Jacobs Photography. 10 - Overall Floor Plan by 4FDesign.
Six buildings, in disrepair from multiple, disparate purposes, now offers new purpose, for new generations and with a new lease on life as the Conwood I redevelopment in the up-and-coming Uptown Memphis neighborhood.
Once an early 20th-century snuff factory and warehouse, this vibrant mixed-use redevelopment has again become a thriving center of business, leisure and living.
The mixed-use project, a catalyst in revitalizing Memphis’ Uptown Snuff District, houses over 130 residential units, including over 30 that are income- and rent-restricted to community members earning 80% or below the area median income.
Varsity Spirit, formerly located in East Memphis, established its corporate headquarters in the redeveloped complex too, bringing with it nearly 240 jobs.
These new residents, employees, their visitors, vendors and guests infuse vitality, and ultimately, new restaurants, retail, entertainment, tourism and lifestyle attractions to this once-forgotten part of town.
“Representing what was once but new and refreshed”
The Tennessee Historical Commission placed the factory on the National Register of Historic Places in 2018, which meant design elements had to follow strict preservation regulations while conveying a refreshed presence.
The building’s original exterior had to stay intact as much as possible, for example. New additions to buildings could use similar materials but had to look completely new.
Adding to the complexity of the project, the buildings were at different elevations, so connecting them while remaining true to the original structures, and not adding ceilings or modern materials, became a challenge.
To accommodate Varsity Spirit, for example, 4FDesign used two buildings within the complex. Creating a seamless corporate space meant designing a large “connector,” or main hallway by enclosing a gap between the existing buildings for a large, light-filled grand hall.

