Gray Canary
Gray Canary
301 S. Front Street , Memphis, TN 38103 United States
Building Area (sf): 7,090 sf
Completion: 2018
Architect of Record:
LRK
Rebecca Courtney (Principal in Charge), Jodi Davis (Project Manager), Chaderlee Shellabarger (Designer)
- Owner/Client:
- General Contractor: Ybos and Sons
- Electrical: Chad Stewart & Associates (Structural Engineer), HNA Engineering, PLLC (MEP Engineer)
- Engineering:
- Other:
- Photography:
Nick McGinn
Curated views through a crafted balance of tones and textures focused on the theme of land, sea, and fire within a voyage of culinary experiences.
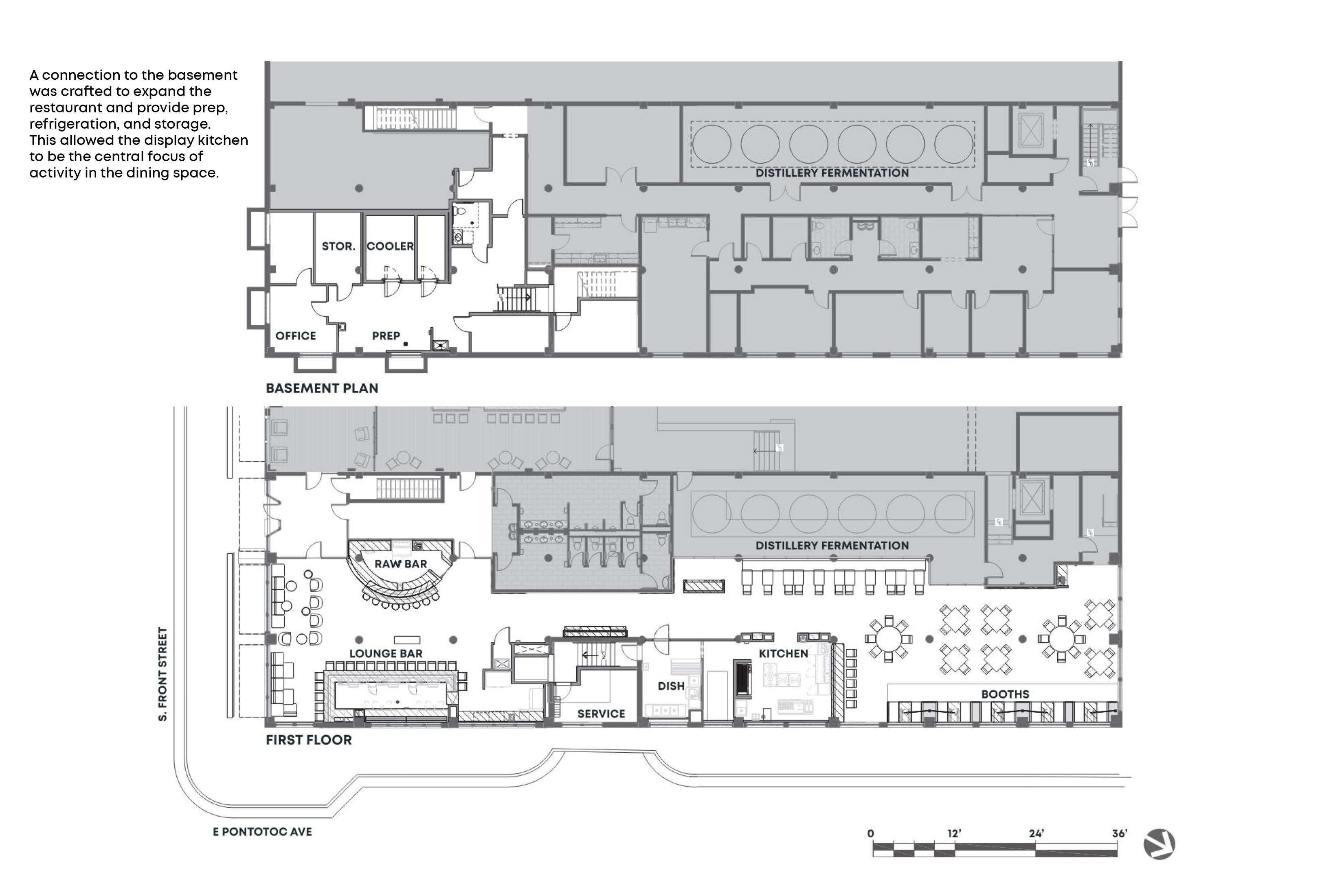
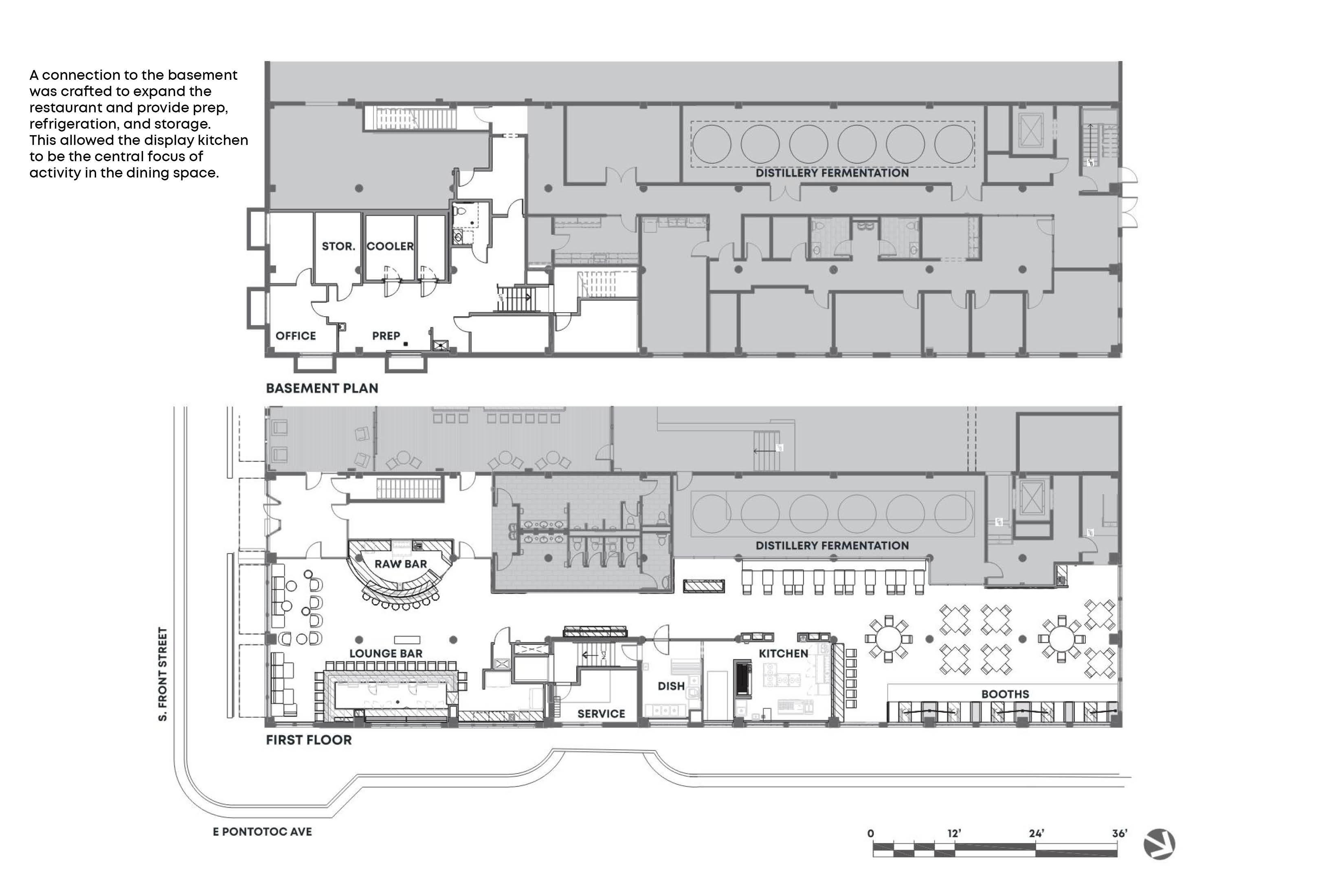
The existing warehouse space faced spatial challenges to accommodate a culinary show kitchen in addition to a bar, lounge, and 80-seat dining space. A connection to the basement was crafted to expand the restaurant and provide prep, refrigeration, service access, and storage. This allowed the display kitchen to be the central focus of activity in the dining space. The design concentrated on crafted views to capture the energy both in the kitchen, but also the active Front Street and Hernando DeSoto Bridge views. The experience expands the views inside, highlighting the raw bar, active fermentation room of the distillery, and the wood-burning hearth in the kitchen.
Finishes were selected to reflect the client’s desire for whimsy and adventure, both on the menu and in the restaurant’s references to land, sea, and fire. Hues of turquoise and green, paired with brilliant metals and lustrous lighting, exude this theme throughout the restaurant.
Providing sound absorption, the exposed concrete structure is clad in acoustical tectum and painted a complex turquoise, a nod to industrial elegance while emanating land and sea. As dinner guests are led down the corridor to the dining room, a shift in atmosphere occurs as they pass the open kitchen framed by wood for the grill and views into the distillery and the river come into frame.
A custom banquette against the fermentation room allows for flexible seating for parties and raised booths in the dining room give a perched view of the Mississippi River, the bridge, and the city skyline. Custom cantilevered lighting centered on the original, large warehouse windows is silhouetted by the views. The dining room is balanced by wood paneling inset with an antique brass mirror to reflect light into the space. At the chef’s counter, diners enjoy a front-row invitation to watch the skilled kitchen staff at work. A custom wood-fired grill takes centerstage as numerous dishes inspired by Tuscan outdoor grills and Memphis backyard barbecues are drawn from the flames.

