Russell Residence
Russell Residence
private, Piperton, Tennessee United States
Building Area (sf): 4,207
Completion: March 2022
Architect of Record:
archimania
- Owner/Client:
- General Contractor: Owner
- Electrical:
- Engineering:
- Other:
- Photography:
firm
The project is a home designed for a couple ready to leave the suburbs and return to their pastoral roots.
Located in a cattle pasture on land owned by the family for generations in Piperton, Tennessee, the home is designed to maximize the views of the idyllic setting and offer a comfortable gathering space for friends and family. A simple gabled form, the material palette draws from the home’s natural setting with earthy bronze metal softened by accents of cedar siding. Strategic placement of punched windows, overhangs and dormers control the harshest light, while longer spans of window walls offer views of the rolling hills and tree canopy beyond.
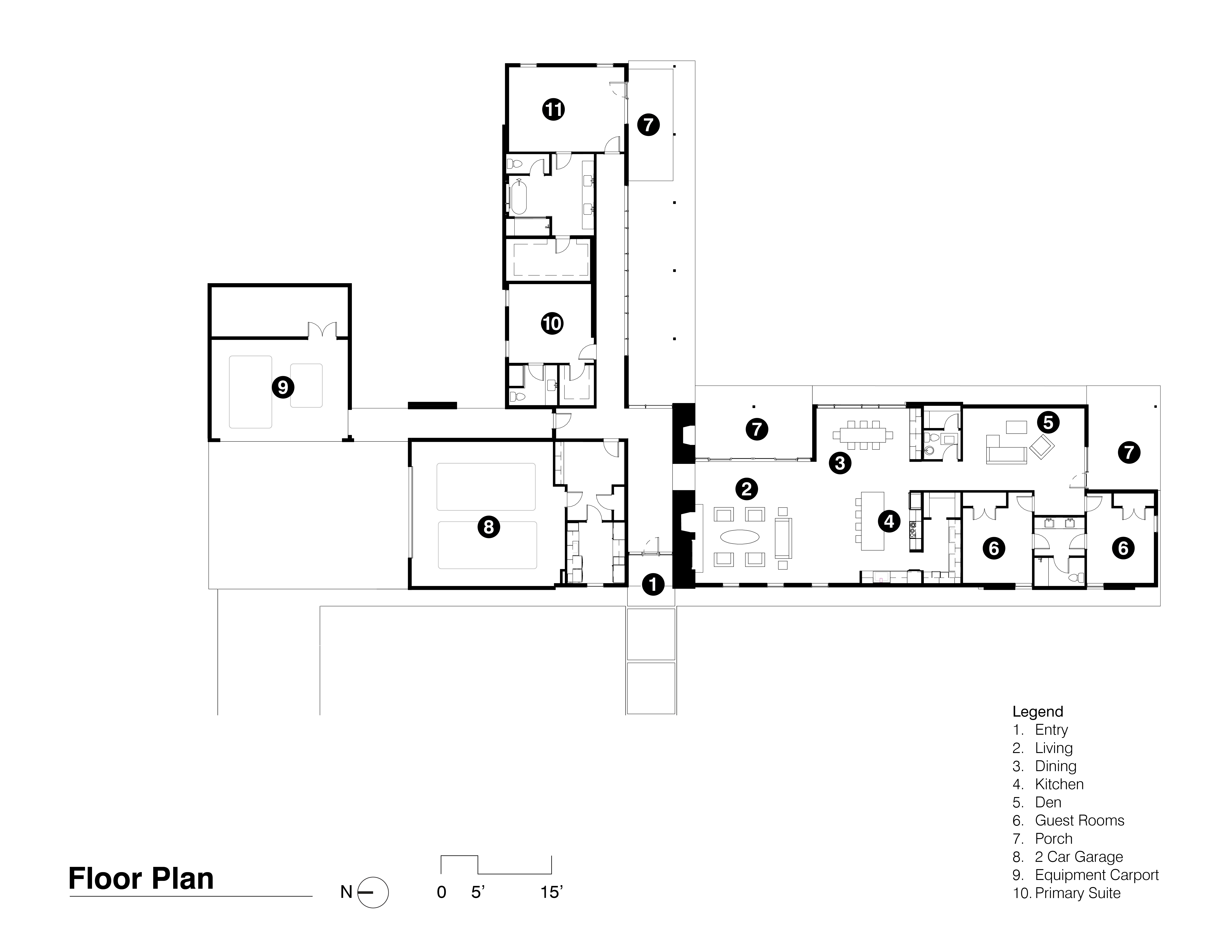
The home is comprised of two intersecting bars of program, one housing the more public living areas and the other a private master wing. At the intersection of the two bars, a framed view of the pasture defines the entry sequence. Contrasting the intentionally compressed ceiling of the entry hall, the living spaces have high vaulted ceilings of whitewashed wood punched by dormers that flood the space with natural light. The open floor plan is anchored by a floor to ceiling brick wall and windows that blur the boundary of interior and exterior.

