Eye Surgery Center Morristown
Eye Surgery Center Morristown
5491 Creekwood Park Blvd, Lenoir City, TN 37772 United States
Building Area (sf): 8,400
Completion: August 2022
Architect of Record:
UrbanARCH Associates, P.C.
- Owner/Client:
- General Contractor: Citadel Construction Management, LLC
- Electrical: Land Development Solutions - Civil
Haines Structural Group - Structural Engineering
HNA Engineering - MEP Engineering - Engineering:
- Other:
- Photography:
1 - The existing building was demolished and rebuilt as a new construction facility in order to meet all of the programmatic restrictions of the new medical facility. Photos by Bruce Cole.
2 - The rhythm on the exterior finds its way into the interior through the treatment of the ceiling and its associated lighting when one is welcomed into the space. Photos by Bruce Cole.
3 - The exterior and interior emit rhythm through its materiality. The exterior metal panel breaks apart the typical pre-engineered metal building frame mold and allows the space to uniquely set itself apart from adjacent buildings. Photos by Bruce Cole.
4 - Visually, you experience the integrated rhythm through the front desk and ceiling design. Photos by Bruce Cole.
5 - Pre and post recovery areas were painted to match the accents found across the medical equipment. Photos by Bruce Cole.
6 - The reception desk and ceiling design integrate similar repetition and materiality. Photos by Bruce Cole.
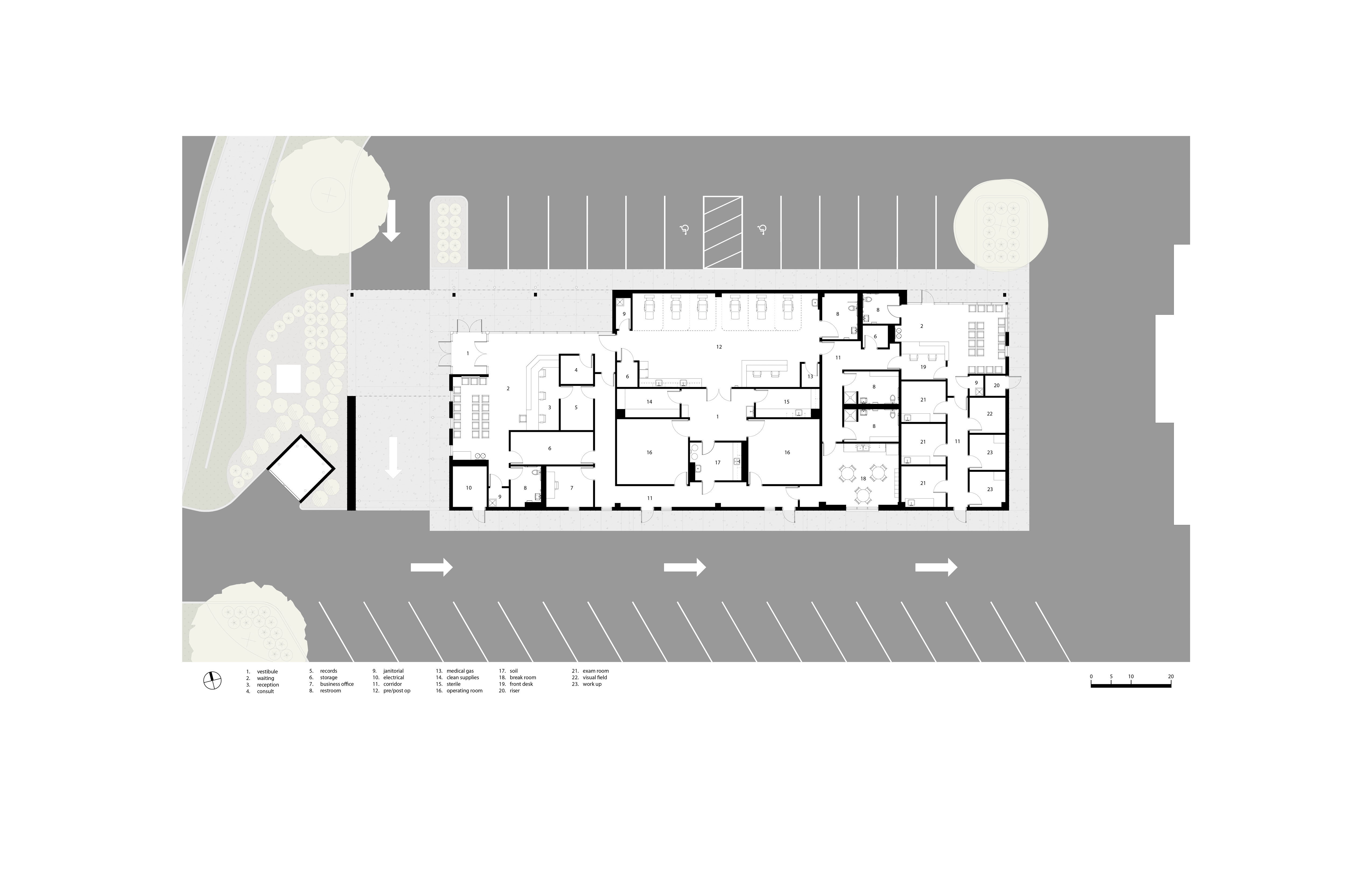
Morristown Eye Surgery Center is an eye care facility that efficiently serves its patients and their needs.
The building design splits a medical facility into two separate tenants that both focus on eye care. By working resourcefully with conventional construction techniques, the simple, rectangular form integrates resourceful, contemporary materials to create a facility that connects the community to the building. The front of the building is largely transparent in order to visually connect the occupants and the site. The backlit perforated metal facade illuminates the entries and the parking lot. This serves as a beacon to the community. A drive-thru drop-off is located at the end of the building adjacent to the surgery center entryway.

