Dorothy’s Cottage at The Kemmons Wilson Center for Good Grief
Dorothy’s Cottage at The Kemmons Wilson Center for Good Grief
1520 W. Poplar Avenue, Collierville TN 38107, 1520 W. Poplar Avenue, Collierville TN 38107 United States
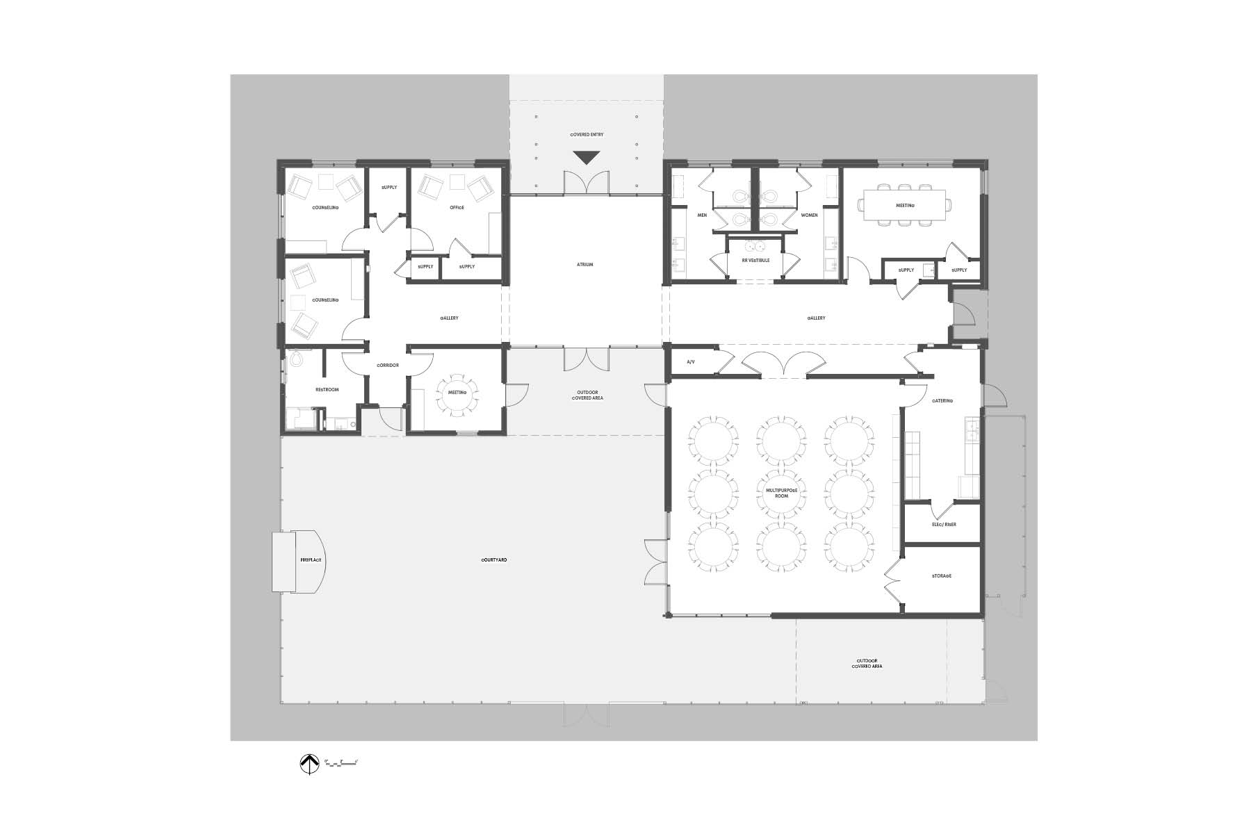
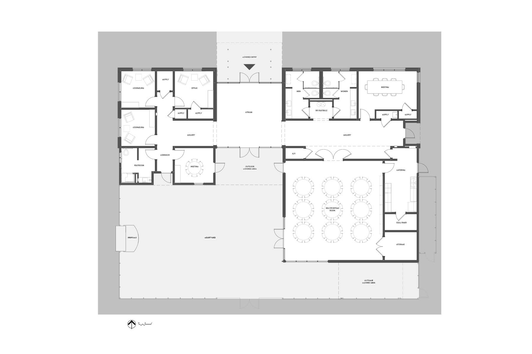
Building Area (sf): 4,600 sf
Completion: April 2023
Architect of Record:
LRK
Tom Gorney, Sophorn Olsen, Greg Morrison, Frank Ricks, Lauren Ricks, Caleb Sears
- Owner/Client:
- General Contractor: Flintco
- Electrical: Civil Engineer – A2H
Structural Engineer – Davis Patrikios Criswell
Mechanical, Electrical, and Plumbing Engineer – HNA Engineering
Lighting – Clear Advantage - Engineering:
- Other:
- Photography:
Nick McGinn
The Kemmons Wilson Family Center for Good Grief initiated a 4,600-square-foot $2.1 million expansion to their Collierville campus to help address the growing demand for counseling services, and provide a new space for summer camps and community activities. The project team answered the multi-use programmatic criteria with a simple building form and a clear parti that brings daylight into every space.
The Kemmons Wilson Family Center for Good Grief initiated a $2.1 million expansion to their Collierville campus to help meet the growing demand for counseling services in the region, and to provide a new space for summer camps and community activities. The new center, Dorothy’s Cottage, occupies a small, wooded site adjacent to a hospital and hospice house.
The new 4,600-square-foot Cottage includes a multipurpose gathering space, catering kitchen, individual counseling rooms, and an outdoor gathering area designed to accommodate counseling services in a group or camp format. The building parti is informed by multiple uses of the project, divided between a semi-private wing and public wing that can be opened up be used together when needed, meeting at the atrium and connected outside through a courtyard.
At the beginning stages of the project, the client mentioned using every square inch of their current center - such as utilizing small corridors for lots of uses, from yoga classes to file storage. While the new Cottage has a small footprint the team designed a building where each space holds as many uses as possible, where the atrium becomes a tall open space for morning yoga classes that spill out into the courtyard, and where the hallways were designed just a few feet wider than normal to become galleries and spaces to gather. The architecture and interiors use simple forms and a quiet material palette to reflect the Center’s core mission of providing a safe and comforting environment. Daylight and views to the arboreal setting through large windows bring a sense of openness and hope for those dealing with grief. At the heart of the building the atrium serves as a locus for connection and healing.

