Townsend Residence
Townsend Residence
private, Memphis Tennessee United States
Building Area (sf): 1,753
Completion: April 2023
Architect of Record:
archimania
- Owner/Client:
- General Contractor: McIvor Construction
- Electrical: Old City Millwork - Millwork
- Engineering:
- Other:
- Photography:
firm
Designed for a California graphic designer and woodworker, this classic bungalow is reimagined for a more open feel.
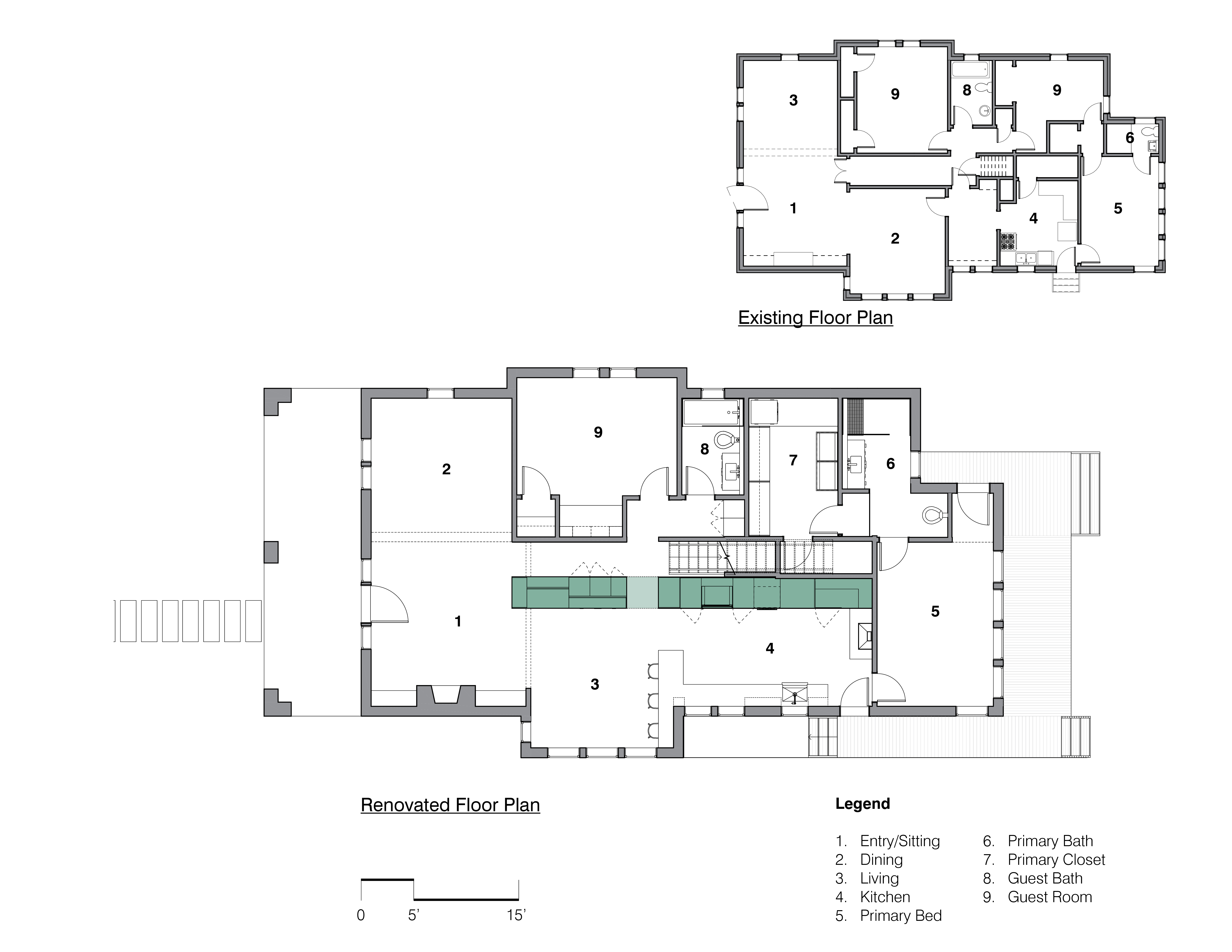
The design layout maximizes the kitchen space and provides a connection with the living area. By removing a few interior walls - the kitchen expands into a former breakfast nook and again into the former dining room now purposed as the living space. The home's original blown glass windows were restored allowing the updated open plan to glow with natural light.
The space is also reshaped by transforming the former hallway wall into an expanded millwork component. The former demising wall is now utilized as an interactive storage spine throughout the home’s interior. In the living room, it serves as a media wall, while in the kitchen it contains several appliances, full-height storage, and a walk-in pantry. In the hall, it provides bookcases and a coat closet. In its intersection with the stairs to the second floor, the spine breaks for a pass-through bar area.
Designed for a California graphic designer and woodworker, the walls of this cozy residence are lined with select pieces from the owner’s personal collection.

