Ed Rice Community Center
Ed Rice Community Center
2935 N Watkins Street, Memphis, Tennessee 38127 United States
Building Area (sf): 32,750sqft
Completion: May 02 2022
Architect of Record:
archimania
archimania
- Owner/Client:
- General Contractor: Grinder, Taber & Grinder, Inc.
- Electrical: Site Design, and Landscape Architecture: JPA INC.
Structural Engineering: Fowler Engineering, LLC
Mechanical Engineering: Haltom Engineering, LLC
Plumbing, Fire Protection, and Electrical Engineering: Innovative Engineering Services, LLC - Engineering:
- Other:
- Photography:
This project is a much-needed replacement of a tired and fragmented community center built in 1965. Situated within a 41-acre municipal park, the Ed Rice Community Center provides a cohesive space for gathering, learning, and exercise for the Frayser neighborhood of North Memphis.
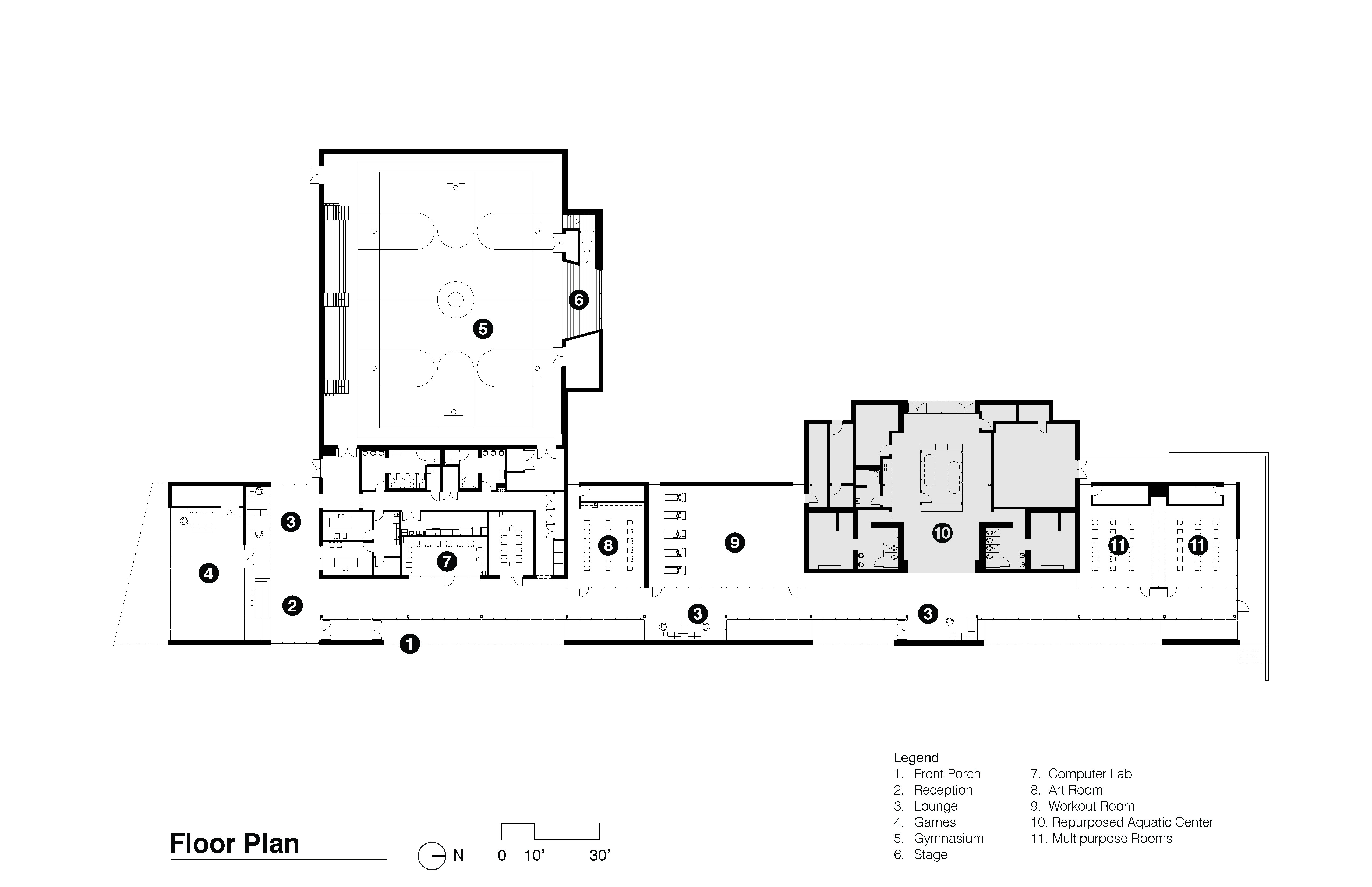
The reimagined Ed Rice Community Center is the newest addition to Frayser Park, a site steeped in history, revealed in the unusual planning of the park and the aging structures scattered along the western edge of Watkins Street. Situated between Frayser Park and the community’s residential neighborhoods, the aging 1965 center consisted of an opaque brick gym around which accessory spaces were arranged. To the north, a separate, newer aquatic center and midcentury tennis center had been constructed in a piecemeal fashion, giving the public face of the park no sense of identity, threshold, or connectivity.
During an extensive programming and community engagement phase, the design team discovered a now-defunct cemetery, the final resting place of 30,000 indigents, stillborn babies and others buried between 1852 and 1965, including many who were lost to the Yellow Fever Epidemic of 1878. The previous community programming had been disjointed and elongated so as not to disturb the graves. The new Center’s design was faced with the same spatial constraints, which led the design team to embrace the idea of the building as a threshold between the community and the park. The exaggerated linear parti easily reused and incorporated the existing aquatic center and pumphouse, giving it new life and a new identity as part of a cohesive whole.
To the community, the Center presents a single-story transparent façade behind a buffer of low landscaping at the busy street: a collage of glass and durable light-hued polished masonry layered in front of the more discrete, massive programmatic volumes of the gym and aquatic center that rise above in dark-hued polished masonry and deeply profiled prefinished metal. From the interior, a broad public corridor widens at gathering spaces, encouraging interaction between disparate users whom had previously been siloed. The space is scaled by a rhythm of street-facing glass and landscaped courtyards to the east, and community programming to the west. Meeting, exercise, art, and tech spaces reside comfortably between the public gathering space and the park.
Nearly every occupiable space (including the gym) is primarily lit by controlled daylight. A robust and energy-efficient wall section, highly-durable materials, the strategic incorporation of existing building components, as well as structural and electrical systems designed to accept future photovoltaic panels are all measures that contribute to the projected first LEED Silver City of Memphis-owned and operated building.

