Young Israel
Young Israel
531 South Yates Road, Memphis, TN, 38120 United States
Building Area (sf): 10,870
Completion: September 2021
Architect of Record:
archimania
- Owner/Client:
- General Contractor: Grinder Taber & Grinder, Inc.
- Electrical: Fowler Engineering – Structural Engineer
Allen & Hoshall - Civil Engineer
DePouw Engineering - Electrical Engineering
Gala Engineering - Mechanical Engineer
Casper Briggs, PE - Plumbing
Code Solutions Group - Code Consulting - Engineering:
- Other:
- Photography:
firm
A growing Orthodox Jewish congregation sought a new facility on their campus within a vibrant residential neighborhood.
They desired a place of worship that was inspiring, solemn, and welcoming to its congregants. Early goals for the project were to create connectivity to the street while extending spaces to celebrate daylight and connections to context. The new building sits back elevated from the street with a charcoal fiber cement textured façade with intentional articulation expressing public and private spaces of the design that extend across the site.
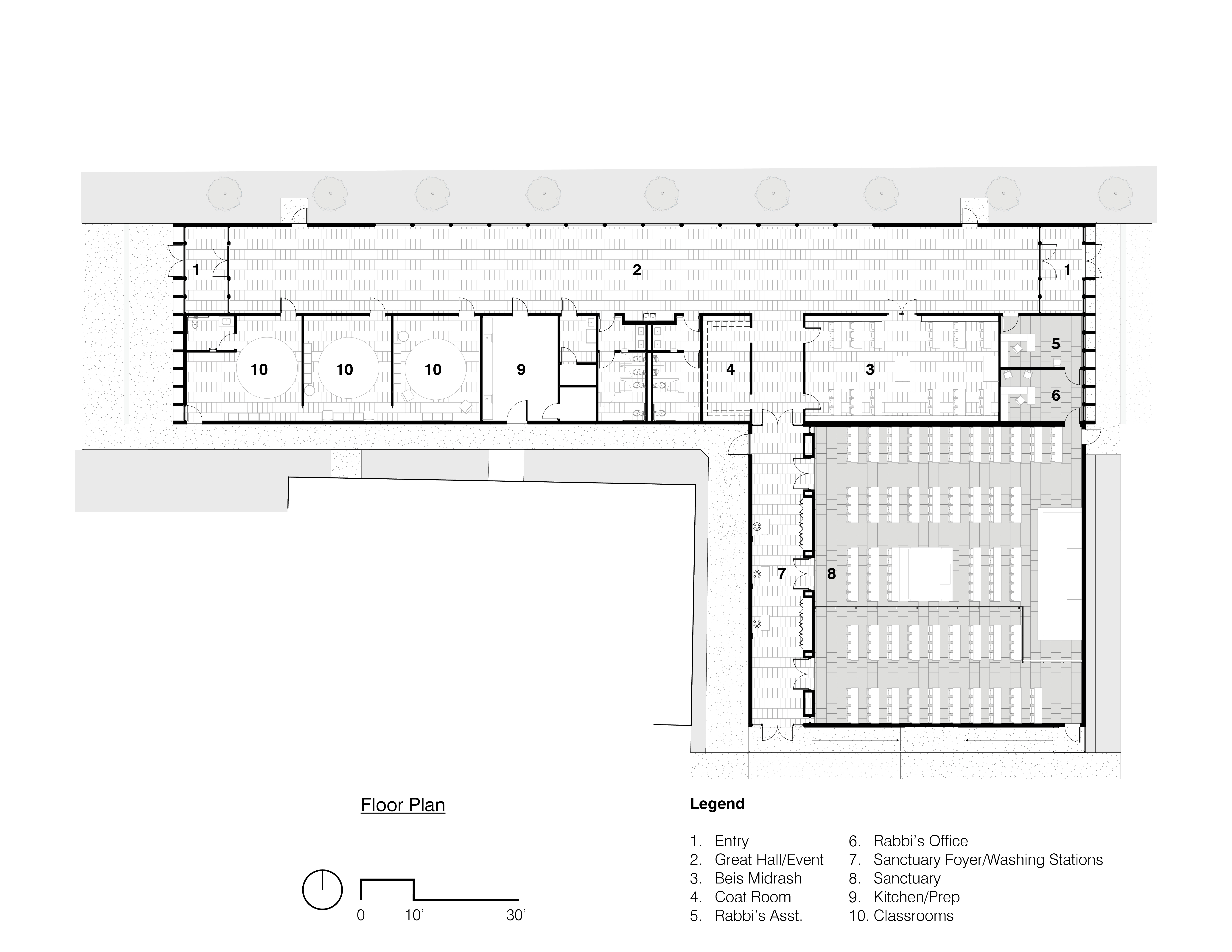
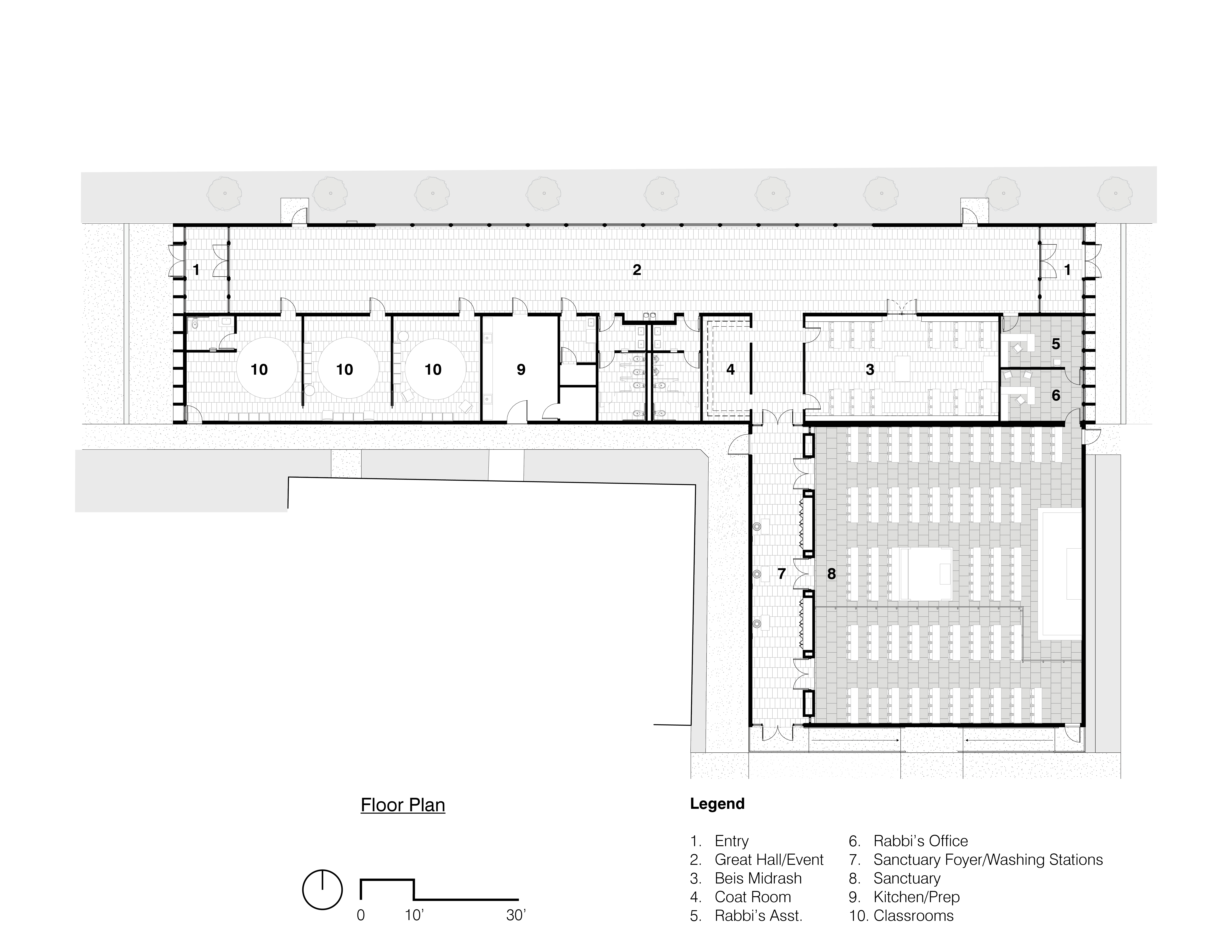
Through efficient building construction strategies and details, this 10,870 sf facility provides abundant circulation and flexibility in the Grand Foyer, administrative suite, Beis Midrash (prayer room), and three classrooms for children – in addition to the 150-seat sanctuary. Before entering the sanctuary, a foyer is articulated as an extension of the sanctuary, yet acoustically it provides an isolated a space to prepare for worship with robust millwork to store sacred texts and song books as well as handwashing stations. Strategic multi-use programming and a connection from inside to outside maximizes the functionality and scale of many of these light-filled spaces.
This design expresses restraint and rigor to celebrate daylight, shadow, and texture throughout the space through strategic manipulations of scale and openings. Along the north wall of the sanctuary, a series of light tunnels dramatically illuminate the interior experience with a subtle glow. To the east, a stone wall is lightly grazed by light to express the material texture and create a quiet backdrop for the furnishings. Jewish craftsmen fabricated an ornate Mechitza (dividing the space between men and women), Bimah (raised platform with reading desk), and Ark (ornate cabinet that enshrines the scared Torah scrolls) for the sanctuary to enhance the traditions of this worship experience.

