MOGA Desoto
7628 Airways Blvd., Southaven, MS United States
MOGA Desoto
7628 Airways Blvd., Southaven, MS United States
Building Area (sf): 10,750
Completion: August 2023
Architect of Record:
UrbanARCH Associates, P.C.
- Owner/Client:
- General Contractor: Walker General Constructors
- Electrical: CSA Engineering - Structural
HNA Engineering - MEP Engineering
Skeen Engineering - Civil Engineering - Engineering:
- Other:
- Photography:
1 - The site is located within the medical district of Southaven, MS and has direct access to the area's primary hospital. Photo by Bruce Cole.
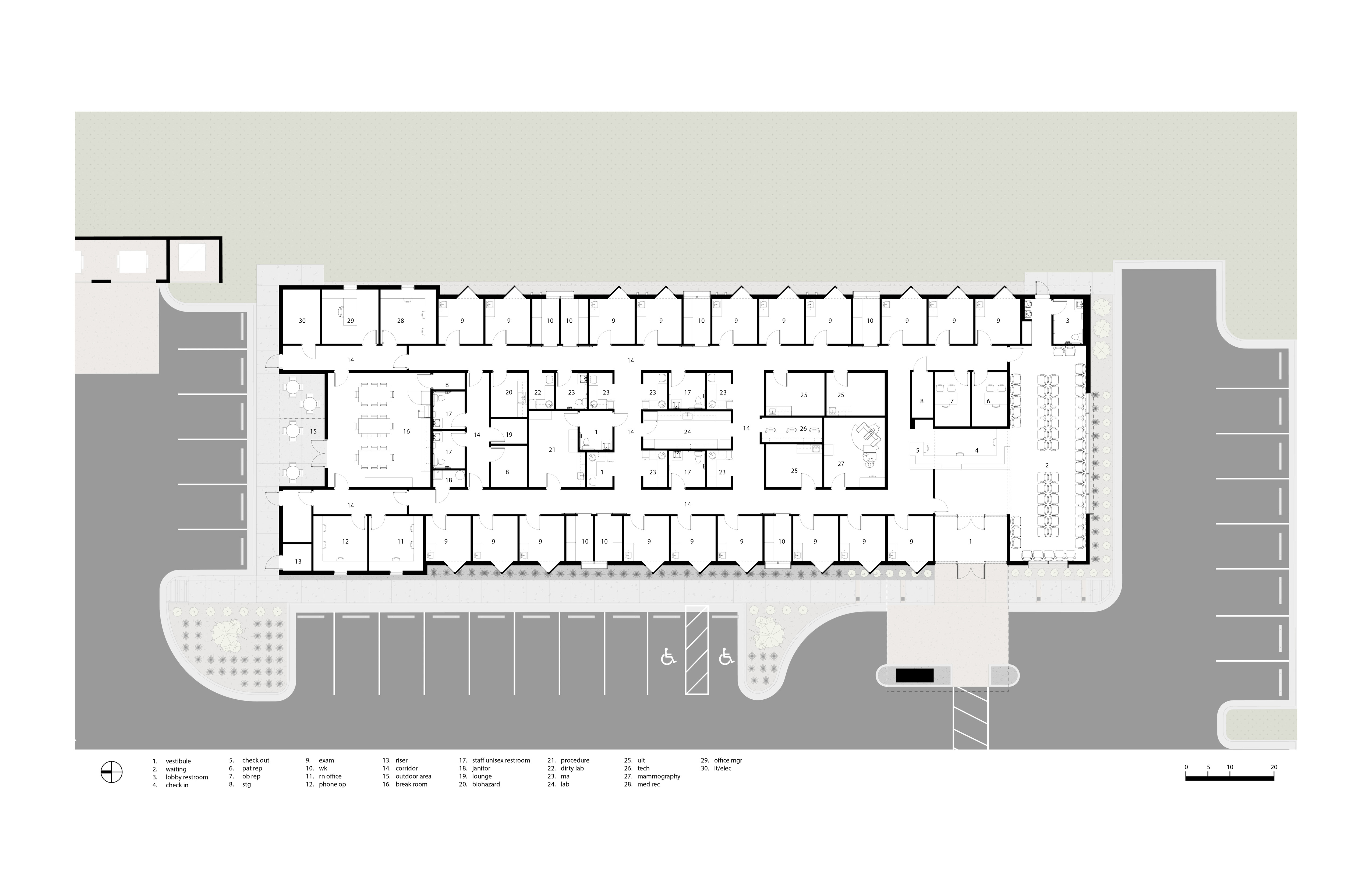
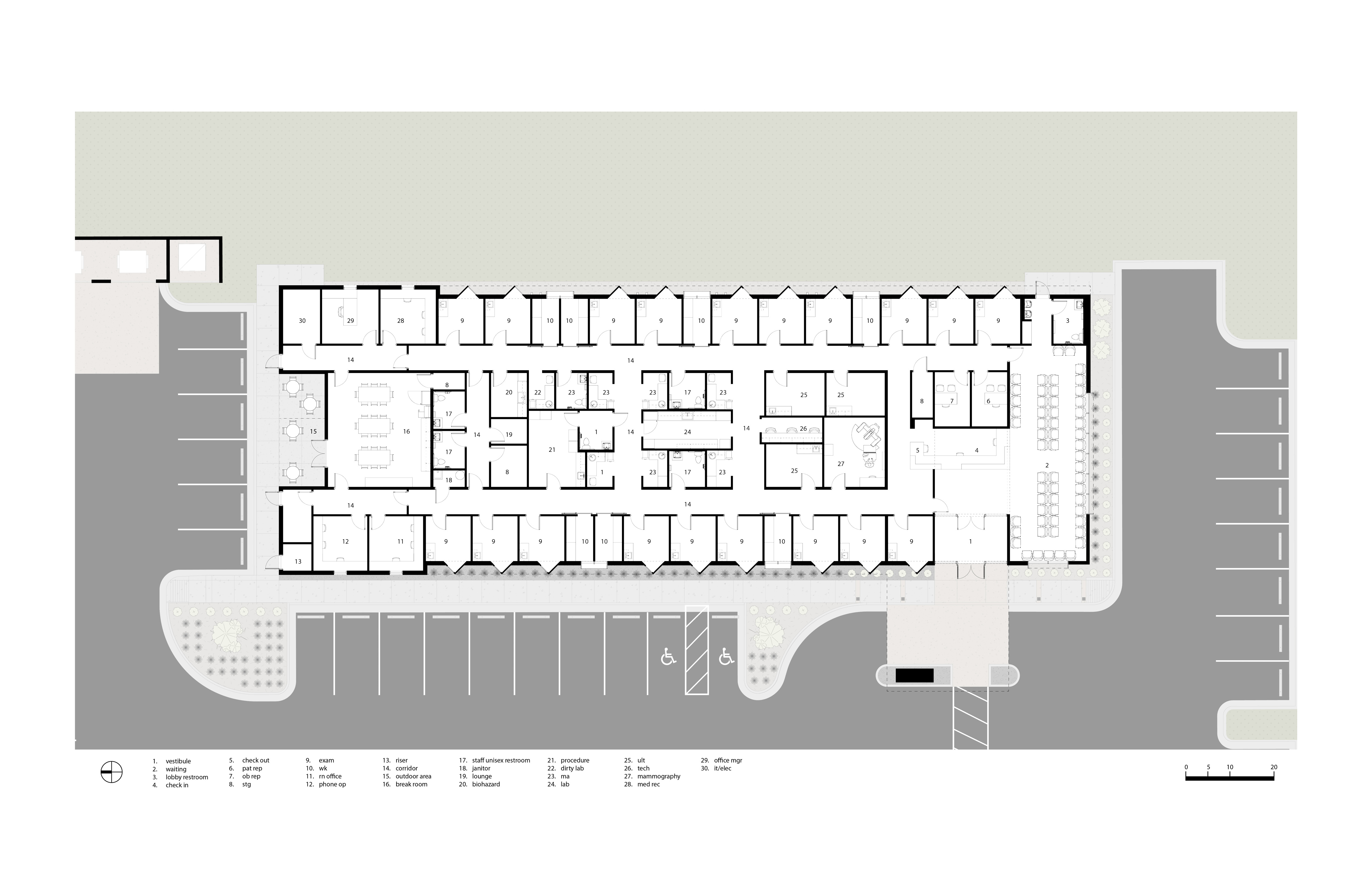
2 - While the form of the building is rather typical in its rectangular shape, the need to allow for natural light, while also preserving privacy, created the challenging opportunity. By pushing the most private spaces towards the public exterior wall, the plan established an intermediary space through the center of the building. This strategy zoned staff towards the west and welcomed patients on the east while servicing both at the central intersection. Diagram by UrbanARCH.
3 - Main entrance is nestled under the centralized patient drop off area. Photo by Bruce Cole.
4 - The windows are custom steel boxes that protrude from the facade to allow for indirect light to be captured within the patient rooms. Photos by Chad Mellon.
5 - An exterior light well is provided above the staff break area along the north facade. Photos by Chad Mellon.
6 - Wood cladding defines the entry and service desk which allows for a guest to stay on-axis as they walk into the space. Photos by Chad Mellon.
7 - The placement of the waiting area adjacent to this axis provides space for patients away from the entry. Photos by Chad Mellon.
8 - Color accents are used to demarcate staff and work areas. Photos by Chad Mellon.
Within its medical district, MOGA Desoto is an OB/GYN office and clinic that serves the city of Southaven.
The building stands out due to the contemporary design aesthetic. This is an evolving design discovery with the MOGA brand. Natural tone finishes were chosen to target the patients’ wellbeing with a warm, welcoming environment. To design for energy and reduce the need for harsh artificial lighting, each exam room is equipped with a custom window box protruding from the facade. These windows are intentionally angled north to achieve daylight without compromising patient privacy.

