Millington Fire Station #2
Millington Fire Station #2
7265 Raleigh-Millington Rd., Millington, TN 38053 United States
Building Area (sf): 10,027 sf
Completion: Jan. 2021
Architect of Record:
designshop, pllc
Tim Michael, AIA
Scott Guidry, RA
Kelly May, RA
- Owner/Client:
- General Contractor: Fulwood General Contractors
- Electrical: SSR, Inc. (Civil and MPEFP Engineering)
Clear Advantage Lighting (Ben Avant) - Engineering:
- Other:
- Photography:
1 - Remaining true to the PEMB system of its making, the building is decidedly contemporary as it serves as a source of great civic pride for the town.
2 - A favorite activity of the firefighters during downtime is sitting outside and visiting with family and friends. A front porch encourages such engagement along with the occasional hand wave to passersby.
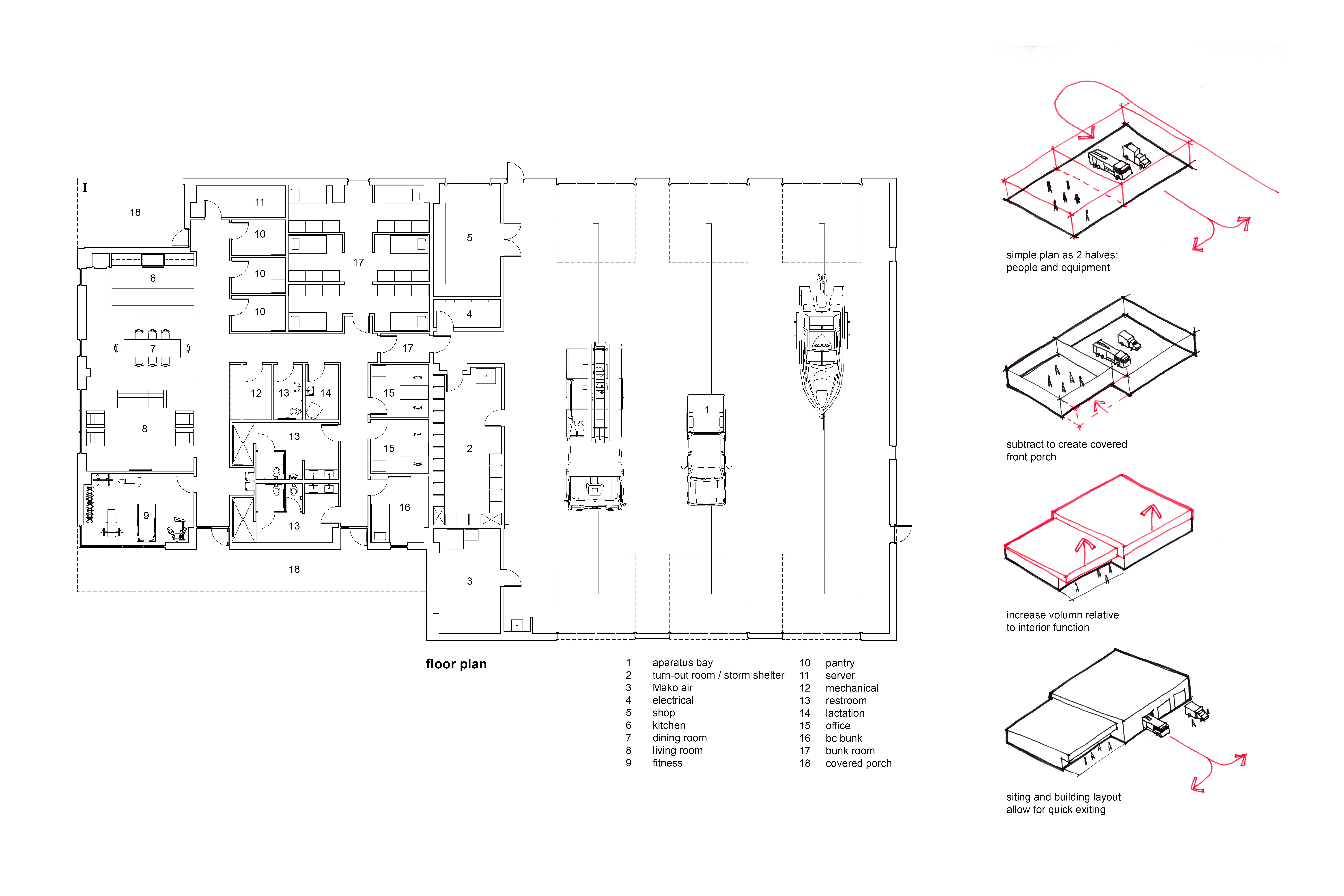
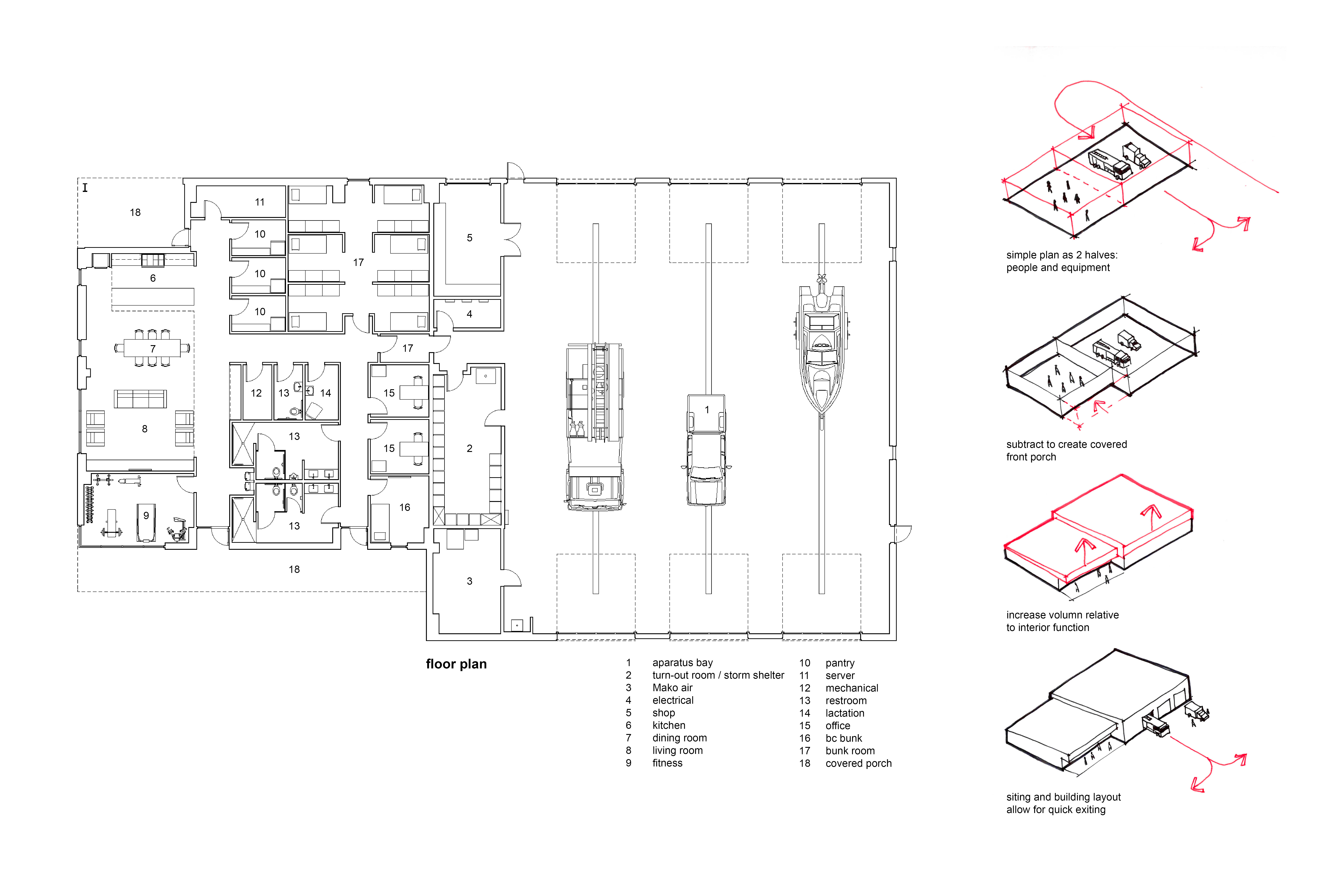
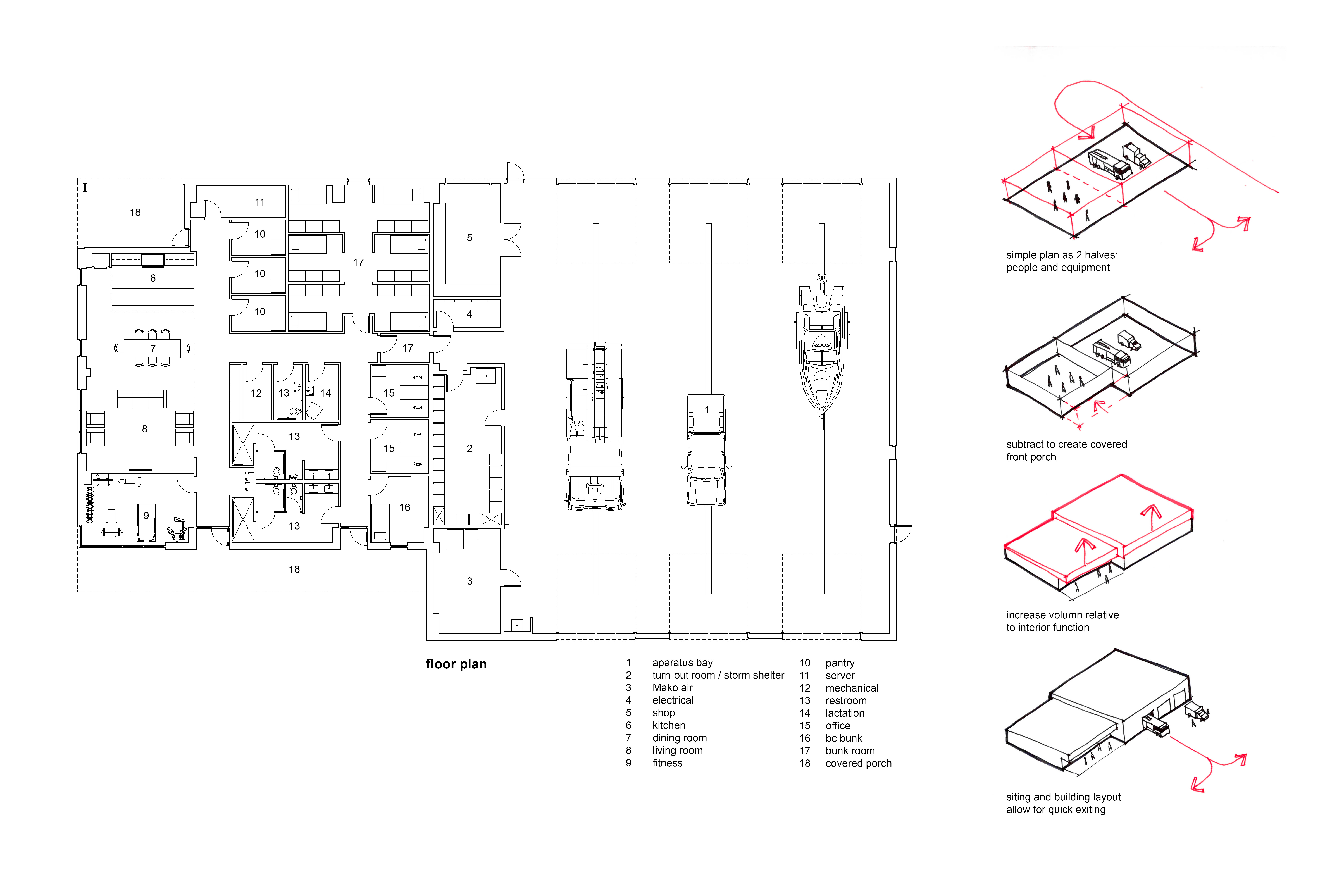
3 - The floor plan is compact with direct lines of circulation. Room adjacencies facilitate the quickest access to equipment and fastest response times to emergencies.
4 - The abundance of glazing emits internal lighting at evening and adds to a level of comfort for walk-up citizens in need of assistance at all hours of the night.
5 - The new station adds to the resiliency of the community through fire protection/emergency support and educational programs offered by on-site staff, creating a base for assistance within the community that was previously lacking within its outdated station.
6 - Dark, tinted glazing with an ultra low U-factor coupled with a white cladding and roof limit solar heat gain and reduce energy loads on the building.
7 - Operating three shifts of only 6 firefighters each, the interiors are scaled relatively small to feel more like one's home. Clean and modest finishes coupled with an abundance of natural light elevate the overall interior atmosphere and promote a healthy existence.
8 - The apparatus bay offers an abundance of space bathed in natural light through fully glazed overhead doors. Its utilitarian finishes, large volume, and pragmatic trench drains easily accommodate equipment during any season of the year.
9 - The station is a drive-thru type in response to decades of operating from a tiny single-bay station requiring delicate maneuvering of large equipment.
10 - The station has quickly become a source of civic pride, embraced by the community for its unique styling and quality design.
Needing to replace an aging ‘70s fire station, a small town sought a new station of extreme efficiency and practicality, yet expressive of a growth-minded community.
With a small budget and large aspirations, the MFD intended to build the first new station in over 40 years. After decades of occupying a tiny single-bay station on a small site, the department capitalized on the opportunity to create a facility that was representative of the highly skilled men and women serving as firefighters. The chief sought to honor the work of his crews by creating a station that boosted morale while making life easier on the firefighters through improved efficiency and maneuverability. With these goals in hand, a simple diagram was developed of two adjacent volumes with direct connection between the them. A smaller volume housed residential program while a large volume contained equipment. Clear and direct circulation tied the two together, allowing firefighters the quickest route to their equipment. Positioning the building at the center of the site allowed for two distinct drive lanes: one for typical vehicles and a second for the larger, heavier fire trucks. Generous space at the rear of the site allows trucks to turn 180 degrees into the building and pass-through for quick exiting.
Uninterested in any historical notion of a firehouse, the department encouraged design freedom while adhering to the budget. Subsequently, a pre-engineered metal building (PEMB) was employed to great effect. Its long spans and simple volumes proved extremely cost-effective. Subtle shifts in common materials, solid-to-void massing, and simple, clean detailing elevate the PEMB system to one of great impact resulting in a building of great pride within the community.

