Youth Villages - Shelby Oaks
Youth Villages - Shelby Oaks
5515 Shelby Oaks Drive, Memphis, TN 38134 United States
Building Area (sf): 19,104 sf
Completion: March 2020
Architect of Record:
archimania
archimania
- Owner/Client:
- General Contractor: Linkous (first phase), GTG (second phase)
- Electrical: A2H - Electrical Engineering
Clear Advantage Lighting - Lighting Consultant - Engineering:
- Other:
- Photography:
firm
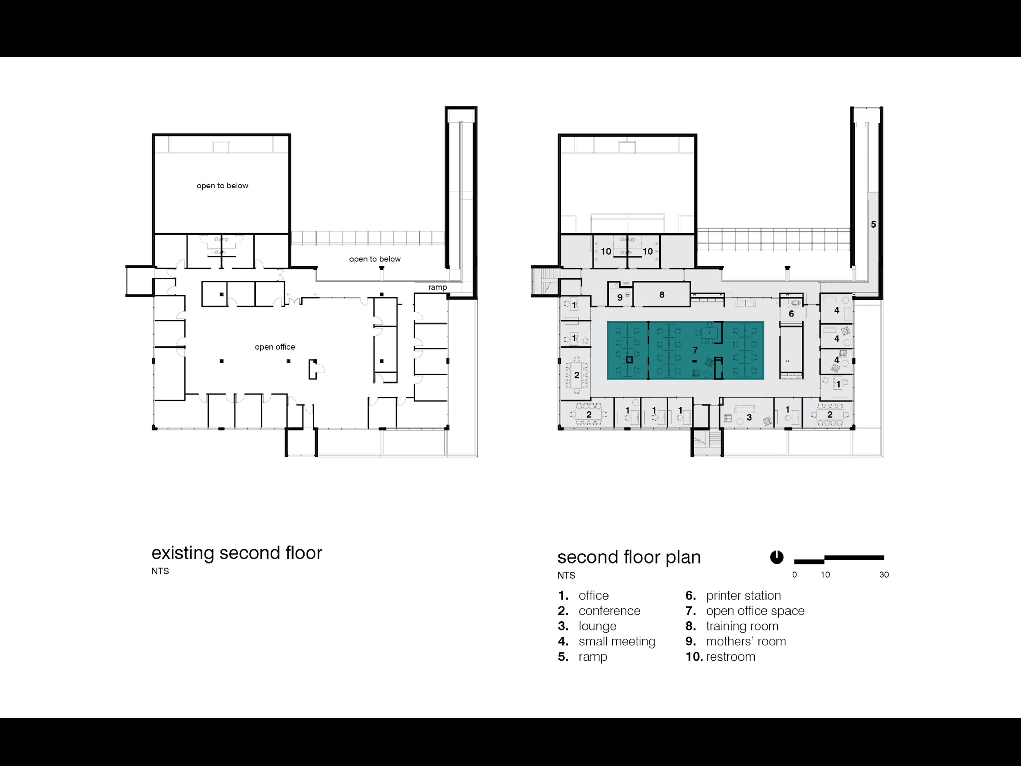
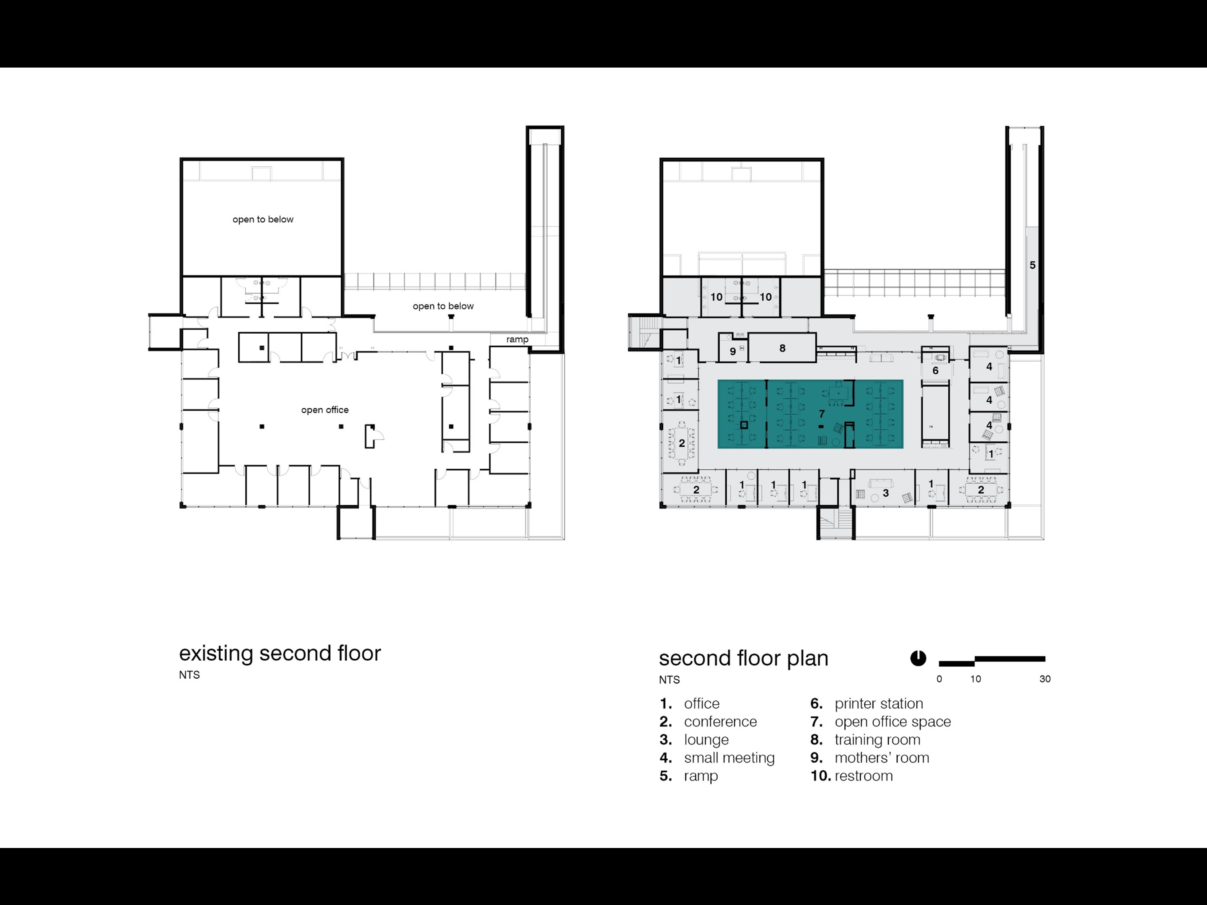
Renovation of an existing office interior with the goal of increasing open space, collaborative culture, and natural light using bright and textured materials to add vibrant energy.
The client - a non-profit organization that helps children with emotional, mental, and behavioral challenges -was ready to update the interior architecture of the building they had been operating within for over two decades to give their associates a better working environment. The result is a more open office space with views to the exterior throughout the entire area. Solid walls at the offices along the exterior walls on the first and second floors were replaced with glazing to allow natural light to flood the interior spaces. Bright colors emphasized the inner open office spaces. In the lobby, a large table sits under a glazed atrium for remote caseworkers and visitors to land while waiting for meetings, while the reception desk has been pushed deeper into the interior freeing up the rest of the space. Screens made from wood slats give the lobby a warm, tactile background that helps articulate layers and define the programmed areas: the table, the ramp, and the desk. Strategic design decisions were made to provide the greatest impact within the non-profit's very modest budget.

