Youth Villages Bower Activity Center
Youth Villages Bower Activity Center
7410 Memphis Arlington Road , Bartlett , TN 38135 United States
Building Area (sf): 13,875
Completion: November 2020
Architect of Record:
brg3s Architects
Jason Jackson - Lead Designer
Susan Golden - Project Manager
Derek Hukill - Designer
Yewei Chen - Interior Designer
- Owner/Client:
- General Contractor: Grinder Taber & Grinder
- Electrical: A2H - Landscape Architect/Civil Engineer
SSR - Structural Engineer/MEP
Fisher and Associates - Food Service Design - Engineering:
- Other:
- Photography:
1. Entry Procession
2. Interior Commons - Daylight and naturally occurring materials have been proven to promote a sense of wellbeing, which is ever so important for the development of the organization's students. Plywood wall paneling, and exposed roof structure of glulam beams and wood decking introduce natural materials. A skylight brings daylight to the heart of the building from above; glass assemblies open from the Commons into each primary space; all primary axes terminate in full-width openings with views to the outside.
3. "Food With Class" Room
4. Drum Therapy Room
5. Interior Commons
6. Meeting Hall
7. Site Plan - The new Activities center is sited to minimize demolition of existing trees and maximize views to the nearby grove to the west, which also acts as a passive solar shading device. This allows warmth and light into the building during the winter months and shading the expansive openings during the lengthy Memphis Summer. Another Key to the siting of the structure is linking programs already present on campus. The activity center is located along an internal street at the transition point from residential " cottages" to larger educational buildings. Students can make the short walk from their residential units on evenings and weekends. Teachers can lead their students from the school without having to load up a van. Two new covered pavilions across the street are places to run, play, and enjoy the outdoors in any weather and at any time of the day.
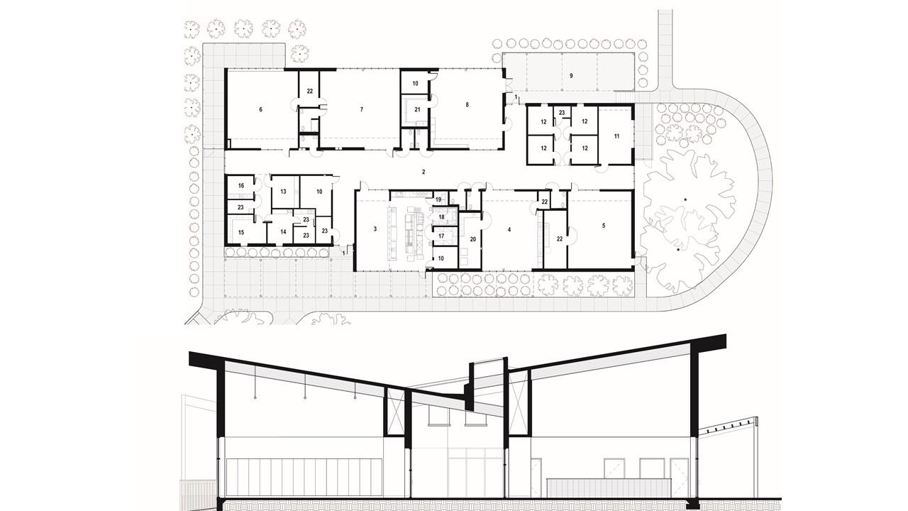
8. Floor Plan - (Legend) 1. Entry 2. Commons 3. Learning Kitchen 4. Art/Events 5. Theater/Events 6. Dance/Yoga 7. Workout Room 8. Drum Therapy Room 9. Exterior Deck 10. Office 11. Conference 12. Multipurpose 13. Salon 14. Dental 15. Optometry Therapy 16. Optometry Exam 17. Dry Storage 18. Refrigerator/Freezer 19. Laundry 20. Kiln 21. Drum Construction 22. Storage 23. Equipment/Service
9. Front Entry View
10. Entry Procession
The Activity Center is a multidisciplinary facility that provides various activity spaces and programs to uplift children with emotional, mental, and behavioral problems.
The Activity Center introduces a light-filled hub of activity and care programs to the pastoral community campus in Bartlett, TN. The Activity Center is part of a nationally recognized program that supports children’s mental and behavioral health, provides residential, academic, and developmental services for children and teens with emotional, mental, and behavioral problems. Initially designed to house only a specific developmental culinary program, the scope quickly grew as the organization identified the opportunity to include a holistic Activity Center that offered a diverse array of active spaces and treatment centers. On a hill at the nexus between residential “cottages” and educational buildings, the Activity Center negotiates the varying scales with dueling single-sloped roof planes that open upward and outward from the building's center, providing expansive views of the campus. Where the roof terminates at its lowest point, steel trellises mirror the slope, expanding the building form outward and upward once again while providing shade for the plaza, deck, and interior spaces. The varied hues of the red brick façade are contextual, durable, and offer an immediate tactility that contrasts the smoothness of the trellis. Exposed glulam beams, wood roof decking, and plywood wall panels bring a sense of warmth and tactility. An expansive central skylight, interior windows, and central axes that terminate with outward views allow ample daylight across all spaces. These features seek to promote unity and shared experiences between the unique programs offered within the Activity Center

