Pandrol Memphis
Pandrol Memphis
611 Winchester Road, Memphis, TN 38116 United States
Building Area (sf): 12,690 sf
Completion: Apr. 2022
Architect of Record:
designshop, pllc
Tim Michael, AIA
Scott Guidry, RA
Emily Redding, RA
- Owner/Client:
- General Contractor: Walker General Contractors
- Electrical: Sesco Lighting - Lighting Consultant
- Engineering:
- Other:
- Photography:
1 - Employees and visitors enter a porous lobby where reception is backed by an assemblage of walls, ceilings, and lighting offering glimpses deep into the space.
2 - Reusing the existing steel frame and roof, nearly all other walls were removed and plumbing reconfigured to create an open office and core space that bridged the divide between office and factory staff.
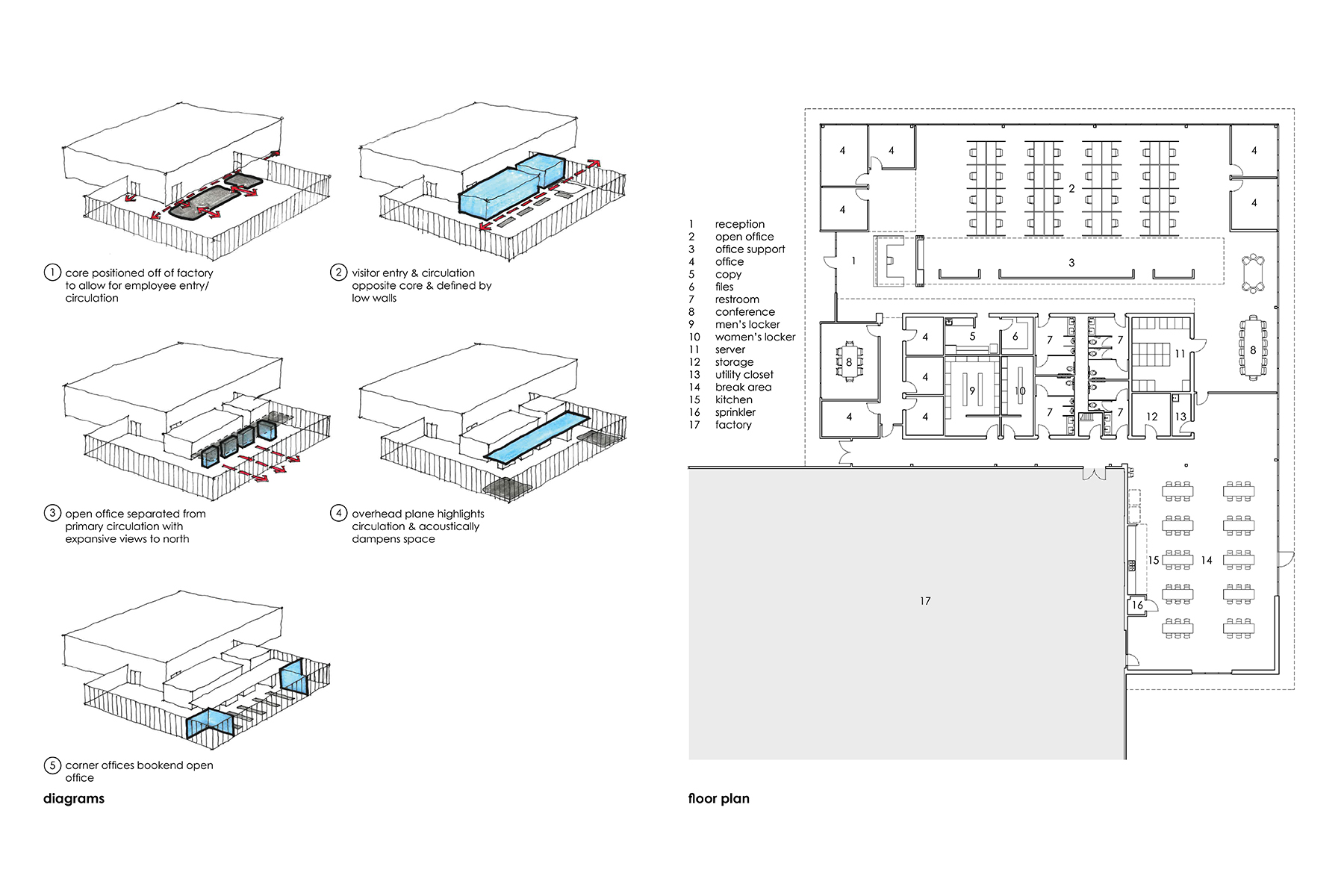
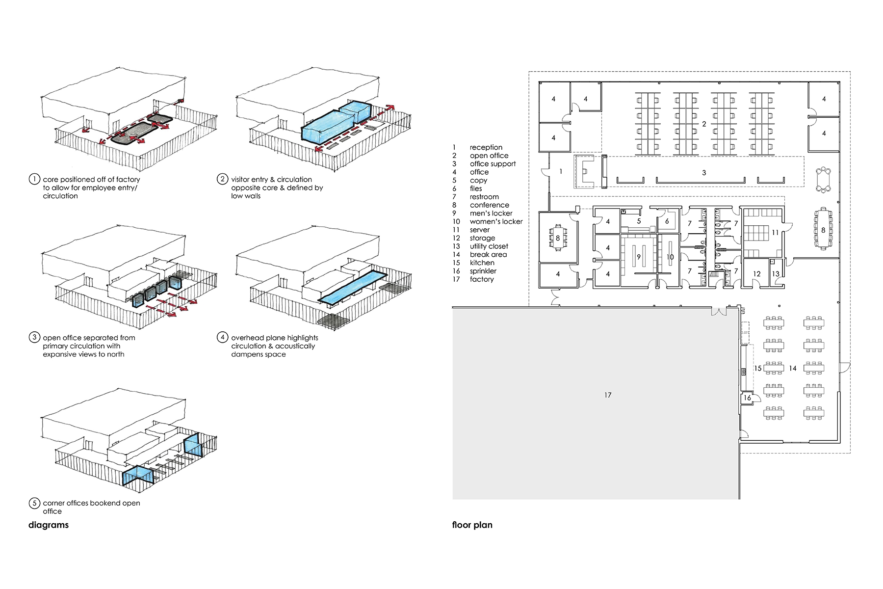
3 - Conceived within the diagrams and visible within the plan is the creation of open, organized, and clearly delineated spatial order amongst the various programmatic zones and spaces.
4 - Light, spatial variation, texture, materials, and color compliment one another to create a rich space.
5 - Mies's sketch of the weightless, floating ceiling for the 1942 Concert Hall proposal guided thoughts concerning the Tectum ceiling as it serves to indirectly define zones of space.
6 - Simple, functional arrangement creates circulation zones that serve as buffers between users while remaining open and connected to the main spatial volume.
7 - Occupants work within inspiring space filled with northern light and featuring varying levels of openness and structural expression, making the daily return to work more pleasurable.
8 - Factory or museum? Environments were approached with the quietness of a museum for factory workers.
9 - The abundance of daylighting admitted through new walls of exterior glazing allow for a reduction in the number of light fixtures within the open office, thus reducing energy consumption.
10 - The floating ceiling plane reduces the scale of the lobby before extending deep into the plan as an organizing and architectural element
Occupying a leased facility built in the 1970s, Pandrol, manufacturer of railroad track components, sought new offices and support spaces that represented its esteemed reputation within the railroad industry while providing greater equity among office and factory personnel.
After leasing a large manufacturing warehouse with a small, abandoned office component, Pandrol operated from temporary office trailers parked inside the warehouse for several years. As company growth permitted, Pandrol moved to renovate the uninhabited office space.
The project involved near complete demolition of all interior walls, finishes, and spaces as well as exterior perimeter walls leaving a steel frame and roof. Serving the needs of both factory and office personnel, a plan diagram was developed positioning the service core between these two entities allowing direct access from each side. Upon entering the office sector from the exterior, an overhead ceiling plane aligns with reception and defines a linear organization to the space. Circulation runs alongside the core, where indirect lighting grazes the gallery wall and offers a soft backdrop. Low walls, whose dark color contrasts with the lighter gallery wall, separate circulation from the offices. The open office receives full floor-to-ceiling glazing on its northern face while being bookended with walled corner offices. Linear suspended lighting floats within a dark, exposed roof structure. Color is used sparingly to reinforce diagrammatic elements and provide small accents to an otherwise tonally neutral palette. Given the nature of factory operations, the owner required a floor surface of sufficient hardness to avoid metal factory shavings from becoming embedded within its surface. Thus, lvt is used throughout. A large break room serves not only as shared dining between factory and office staff, but as informal meeting/social space promoting inclusiveness and team building.

