James D. Eason Transplant Institute at Methodist University Hospital
James D. Eason Transplant Institute at Methodist University Hospital
1265 Union Avenue, Shorb Tower, 4th Floor, Memphis, TN 38104 United States
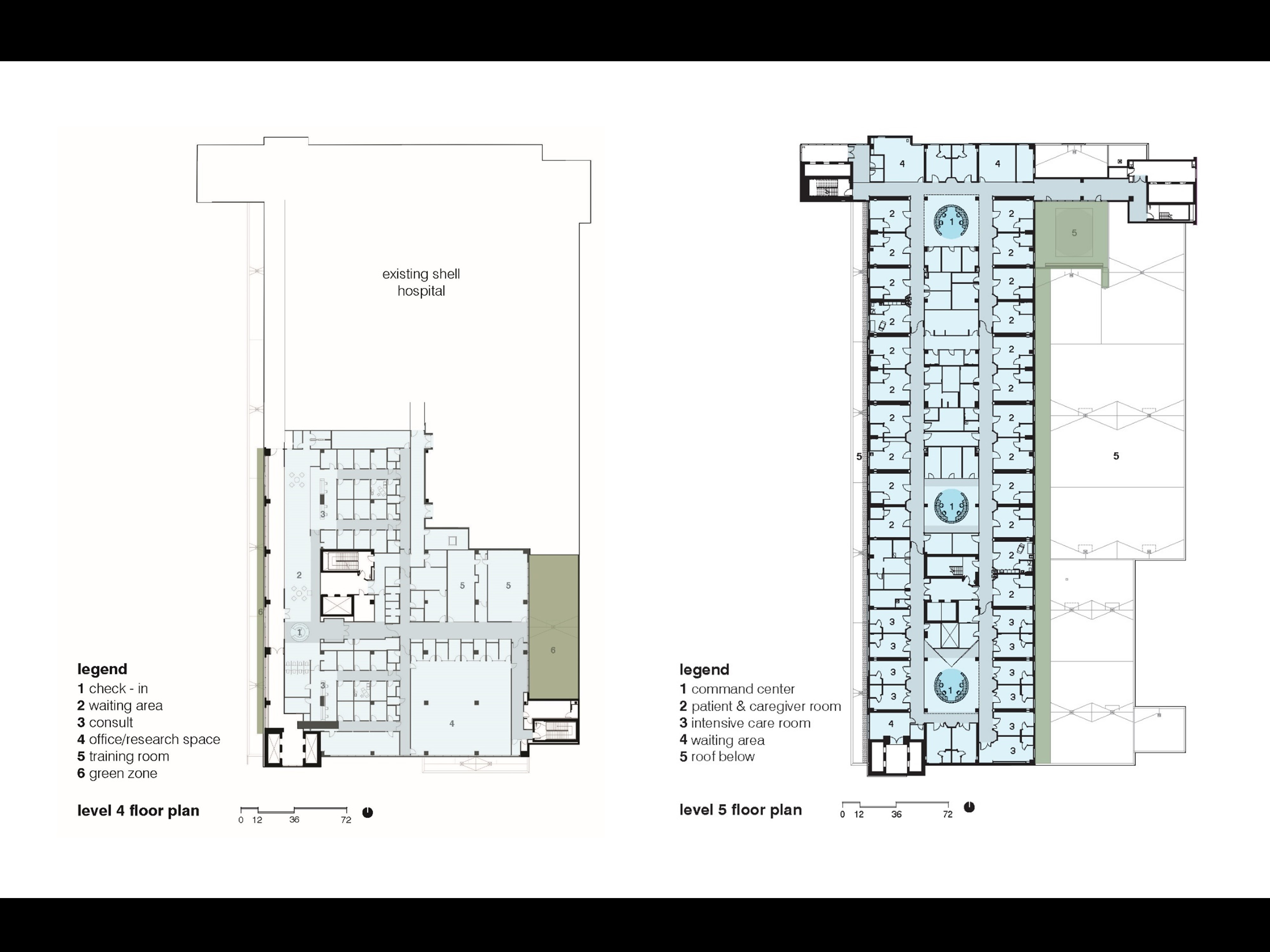
Building Area (sf): 4th Floor – 22,335 sf / 5th Floor – 35,035 sf
Completion: April 2019
Architect of Record:
archimania
archimania
- Owner/Client:
- General Contractor: Turner Construction Company
- Electrical: Bernhard/TME - mechanical and plumbing engineering / electrical and lighting design
Allen & Hoshall - civil and structural engineering
Kersey/Wike & Associates - landscape architect - Engineering:
- Other:
- Photography:
firm
A transplant institute desired a modern, cutting edge space in a new hospital tower that employs safety-critical design while optimizing employee and patient experience.
The world’s leading institute in steroid-free liver transplantation prolongs the lives of hundreds of patients from around the globe. The Institute’s reputation, as well as Apple’s Steve Jobs’ liver transplant in 2009, attracted a major gift to realize a new, progressive approach to critical care. The design enhances the delivery of care before, during, and after a transplant.
A comprehensive approach was taken to integrate complex systems into a framework that relies on a dependent performance matrix. The resulting program prioritizes resiliency through the innovative application of current technologies, materials, and spatial research. Patient care at every stage was a leading consideration within this framework. Our team worked with the client to determine the most effective and economic approach to integration in support of architecture that protects a broad spectrum of critical functions while supporting the diverse needs of the Institute, patients, caregivers, healthcare providers, and support personnel.
The Institute challenges a medical industry that is overly prescriptive and generally lacks the vision to invest in proven innovative design strategies that support health and healing. The team created a more humanized and progressive patient care experience that maximizes the use of actual and perceived natural daylight and materials to expedite healing while decreasing perceived wait times. Through the placement of glass layering, nearly 100% of the occupiable space has views to the outside or to daylight. The use of wood throughout further eliminates perceived dissociation with the natural environment reducing stress and supporting the healing process.

