Knoxville Eye Surgery Center
Knoxville Eye Surgery Center
7739 Dannaher Dr, Powell, TN 37849 United States
Building Area (sf): 4600
Completion: February 2018
Architect of Record:
UrbanARCH Associates, P.C.
Brian Bullard, AIA & Ryan Morris, AIA
- Owner/Client:
- General Contractor: Hickory Construction
- Electrical: HNA Engineering- MPE Engineering
CSA Engineering- Structural Engineering
Land Development Solutions - Civil Engineering - Engineering:
- Other:
- Photography:
1- Photo by Bruce Cole-
2- Photo by Bruce Cole-
3- Photo by Bruce Cole- The waiting room volume is rotated to face north and projects into the landscape.
4- Photo by Bruce Cole- Steel plate sunshades above pre/post-op windows control the entry of daylight.
5- Photo by Bruce Cole- View at reception
6- Photo by Bruce Cole- Reception and Waiting area
7- Photo by Bruce Cole- The waiting room volume protrudes from the main form and connects the occupants to the landscape.
8- Photo by Bruce Cole- View of pre/post-op recovery zone
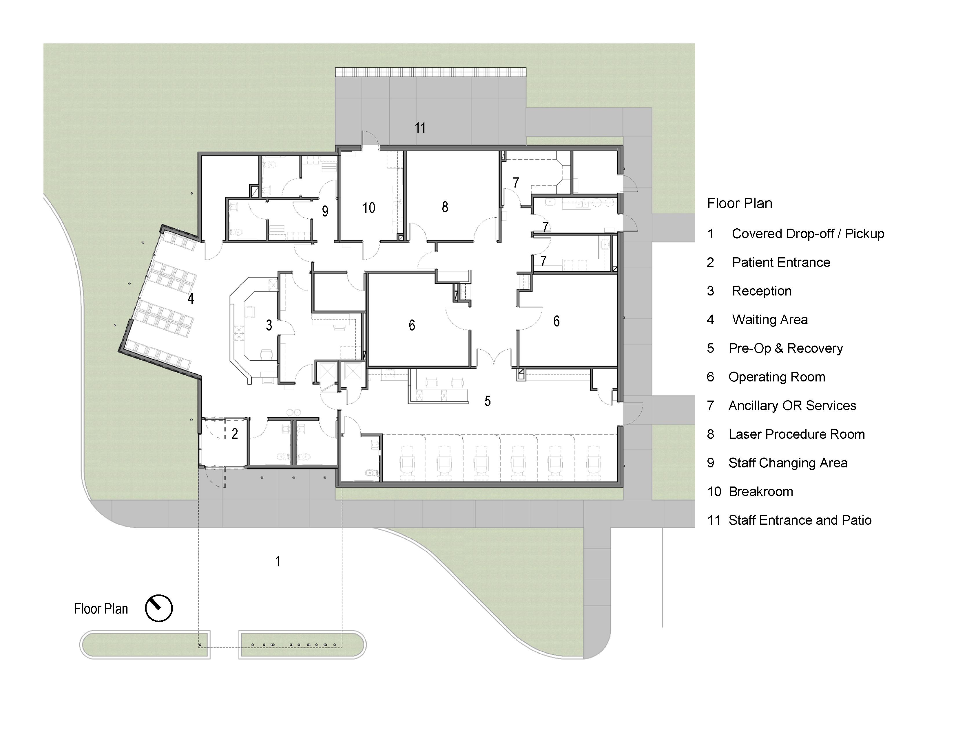
An outpatient surgery center for eye surgeries and procedures with the project goal of “creating a modern vision for the visually impaired”.
The client chose a very small lot in a commercial subdivision near a hospital in a growing suburban area of Knoxville. Their goal was to make their surgery center as compact and efficient as possible in order to conserve site area, reduce operational costs, and reduce initial build costs. The result is a small building with very little wasted space.
The building is comprised of three programmatic volumes each with its own simple mass, material, and function. Materials, textures, and design elements were chosen to reinforce wayfinding for visually impaired patients.

