Crow Residence
Crow Residence
150 Madison Ave, Memphis, TN 38103 United States
Building Area (sf): 5,000
Completion: May 2021
Architect of Record:
UrbanARCH Associates, P.C.
- Owner/Client:
- General Contractor:
- Electrical:
- Engineering:
- Other:
- Photography:
1 - The adaptation of a small downtown building into a coffee shop & residence for a contemporary young family. Photo by Chad Mellon.
2 - Ground Floor Diagram.
3 - Existing finishes were salvaged and restored to create the backdrop for the simple pallet of the new coffee shop. Photos by Chad Mellon.
4 - Second Floor Diagram.
5 - Salvaged wood beams are re-purposed into the dining room table, wine rack, kitchen shelves, and window jambs. Photos by Chad Mellon.
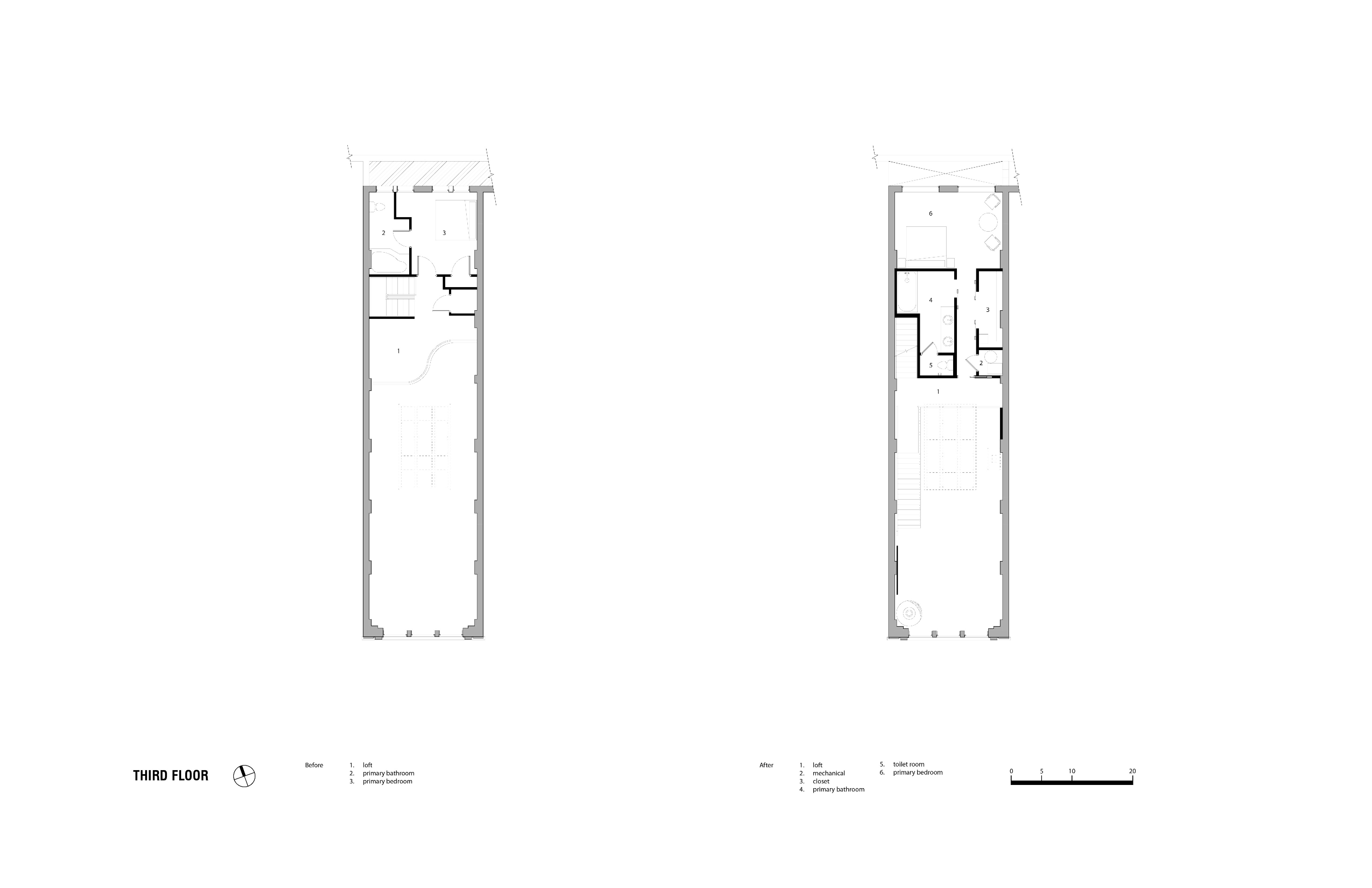
6 - Third Floor Diagram.
7 - The existing bank vault was removed, and rough brick remnants provide hints of history. Photos by Chad Mellon.
8 - The existing plaster ceiling and framing was removed to expose the original decking and structure, increasing the height of the primary bedroom. Photos by Chad Mellon.
9 - Fourth Floor Diagram.
10 - The dual color metal enclosure houses the 4th level rooftop addition.
A historic building of downtown Memphis restored and maintained as a coffee shop & private residence.
A historic 100-year-old building provided the ideal location for a downtown family’s live-work concept. Originally constructed as a bank, the building most recently functioned as an office and restaurant space before becoming empty for nearly 10 years. The street-level now accommodates a new coffee shop, and the upper floors house the private residence. Historic details and materials were cleaned and stabilized throughout the building. New entry doors, a simple canopy, and a glass garage door were added to modernize the storefront. Exposed brick, tall ceilings, floor finishes, and a light well were all exposed and restored to keep the character of the existing building. To accommodate the expectance of the family’s first child, the existing mezzanine was expanded to create a primary bedroom suite level where two bedrooms were tucked under the floor below. In addition, an enclosed rooftop level was added to the building, and the circulation was reconfigured to maximize usable space. A folded metal stair provides the backdrop for the open entertainment area while providing a circulation slot that runs from the ground floor to the 4th level addition.

