Morristown Eye Surgery Center
1639 W Morris Blvd, Morristown, TN 37813 United States
Morristown Eye Surgery Center
1639 W Morris Blvd, Morristown, TN 37813 United States
Building Area (sf): 8,775 sf
Completion: August 2023
Architect of Record:
UrbanARCH Associates, P.C.
- Owner/Client:
- General Contractor: Citadel Construction
- Electrical: HNA Engineering, Haines Structural Group, Land Development Solutions
- Engineering:
- Other:
- Photography:
Morristown
1 – Ambulatory Surgery Center entrance and covered drop off. Photo by Bruce Cole Photography.
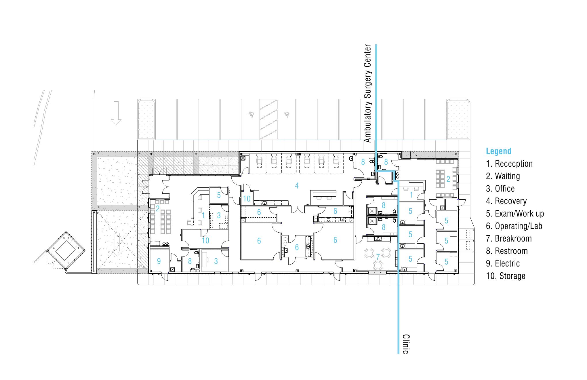
2 – Floor Plan Diagram
3 – Front Façade and entries into the ASC and Clinic Photo by Bruce Cole Photography.
4 – Front Façade and entries into the ASC and Clinic. Photo by Bruce Cole Photography.
5 – Covered drop of detail and exterior rear wall detail. Photo by Bruce Cole Photography.
6 – Rear Façade. Photo by Bruce Cole Photography.
7 – Front Desk and Lobby at ASC. Photo by Bruce Cole Photography.
8 – Front Desk and Waiting at Clinic. Photo by Bruce Cole Photography.
9 – Exam and Operating Rooms. Photo by Bruce Cole Photography.
10 – Recovery Area. Photo by Bruce Cole Photography.
A medical facility that prioritizes transparency and seamless connection. Through the use of perforated metal elements, the building design allows ample natural light to permeate the interior spaces, creating a welcoming and open atmosphere that fosters harmony between the facility's internal activities and the surrounding environment.
Morristown EYE is an 8,400 sf medical facility split into two tenants. One side of the building is an eyecare clinic, and the other is dedicated to an eye surgery center ASC. The front of the building is largely transparent in order to visually connect the internal occupants with the site and vice versa. The backlit perforated metal facade illuminates the entries and the parking lot and serves as a beacon to the community. A drive-thru drop-off is located on the end of the building adjacent to the surgery center entryway.

