Thursday, March 23, 2023
Ed Rice Community Center
2935 N Watkins Street
Memphis, Tennessee 38127
Tours departing at 12:00 and 12:30
AIA Continuing Ed: 1 LU/HSW (pending)
AIA Memphis, Allied Members & Lunitects: $10
General Public: $15
Sandwich lunch: $10
Ed Rice Community Center
by archimania
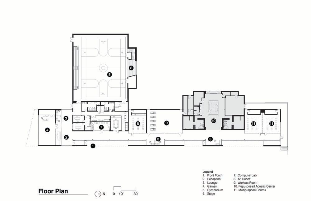
The reimagined Ed Rice Community Center is the newest addition to Frayser Park, a site steeped in history, revealed in the unusual planning of the park and the aging structures scattered along the western edge of Watkins Street. Situated between Frayser Park and the community’s residential neighborhoods, the aging 1965 center consisted of an opaque brick gym around which accessory spaces were arranged. To the north, a separate, newer aquatic center and midcentury tennis center had been constructed in a piecemeal fashion, giving the public face of the park no sense of identity, threshold, or connectivity.
During an extensive programming and community engagement phase, the design team discovered a now-defunct cemetery, the final resting place of 30,000 indigents, stillborn babies and others buried between 1852 and 1965, including many who were lost to the Yellow Fever Epidemic of 1878. The previous community programming had been disjointed and elongated so as not to disturb the graves. The new Center’s design was faced with the same spatial constraints, which led the design team to embrace the idea of the building as a threshold between the community and the park. The exaggerated linear parti easily reused and incorporated the existing aquatic center and pumphouse, giving it new life and a new identity as part of a cohesive whole.
To the community, the Center presents a single-story transparent façade behind a buffer of low landscaping at the busy street: a collage of glass and durable light-hued polished masonry layered in front of the more discrete, massive programmatic volumes of the gym and aquatic center that rise above in dark-hued polished masonry and deeply profiled prefinished metal. From the interior, a broad public corridor widens at gathering spaces, encouraging interaction between disparate users whom had previously been siloed. The space is scaled by a rhythm of street-facing glass and landscaped courtyards to the east, and community programming to the west. Meeting, exercise, art, and tech spaces reside comfortably between the public gathering space and the park.
Nearly every occupiable space (including the gym) is primarily lit by controlled daylight. A robust and energy-efficient wall section, highly-durable materials, the strategic incorporation of existing building components, as well as structural and electrical systems designed to accept future photovoltaic panels are all measures that contribute to the projected first LEED Silver City of Memphis-owned and operated building.
Sponsorship
Opportunities
Our programming relies on the generosity of our Allied Members. Enjoy exposure using one of the following donor levels.
Allied Partners and AIA Memphis members only.
Tour Sponsor
Exclusive Opportunity, $500
Includes
- product/service call-out during tour
- large logo on marketing materials
- special thank you from AIA Memphis President
- 2 minute presentation (talk/video/demo)
- 3 attendee registrations
- sign/banner placement next to registration
- logo on event web page (typically archived/available for many years)
- distribute marketing & swag at event
Vendor Feature
Limited to five, $250
Includes
- product/service call-out during tour
- small logo on marketing materials
- 2 attendee registrations
- sign/banner placement
- logo on event web page (typically archived/available for many years)
- distribute marketing & swag at event














